Compact, uiterst charmant en goed onderhouden studio-appartement van ruim 18 m2 met heerlijk (dak)terras (ca. 7m2) gelegen in de Weesperzijde. Het betreft een appartement op de 4e en tevens bovenste etage, ligt op eigen grond en is snel beschikbaar.
* scroll down for English *
OMGEVING EN BEREIKBAARHEID Het appartement maakt deel uit van een karakteristiek pand uit 1907 in de populaire Weesperzijde-buurt tussen de Amstel en de Wibautstraat. Een geweldige locatie aan de rand van het centrum en op loopafstand van de Rivierenbuurt, De Pijp, theater Carré en het Amstel Hotel. Om de hoek zijn verschillende horecagelegenheden zoals De Ysbreeker, Hesp, restaurant Loetje, het Volkshotel, Bam Boa, Rijssel en Troef. De Weesperzijde aan de Amstel is een plek waar je zomers heerlijk kan relaxen aan het water en zelfs kan barbecueën en zwemmen. Voor hardlopers en fietsers is het een goed vertrekpunt om met de Amstel mee te rennen of te fietsen. Kortom, een heerlijke buurt! De woning is goed bereikbaar met zowel de auto als met openbaar vervoer. Het appartement ligt gunstig t.o.v. de diverse uitvalswegen zoals Ring A10, A1 en A2. Metrostation Wibautstraat en Station Amstel bevinden zich op loopafstand.
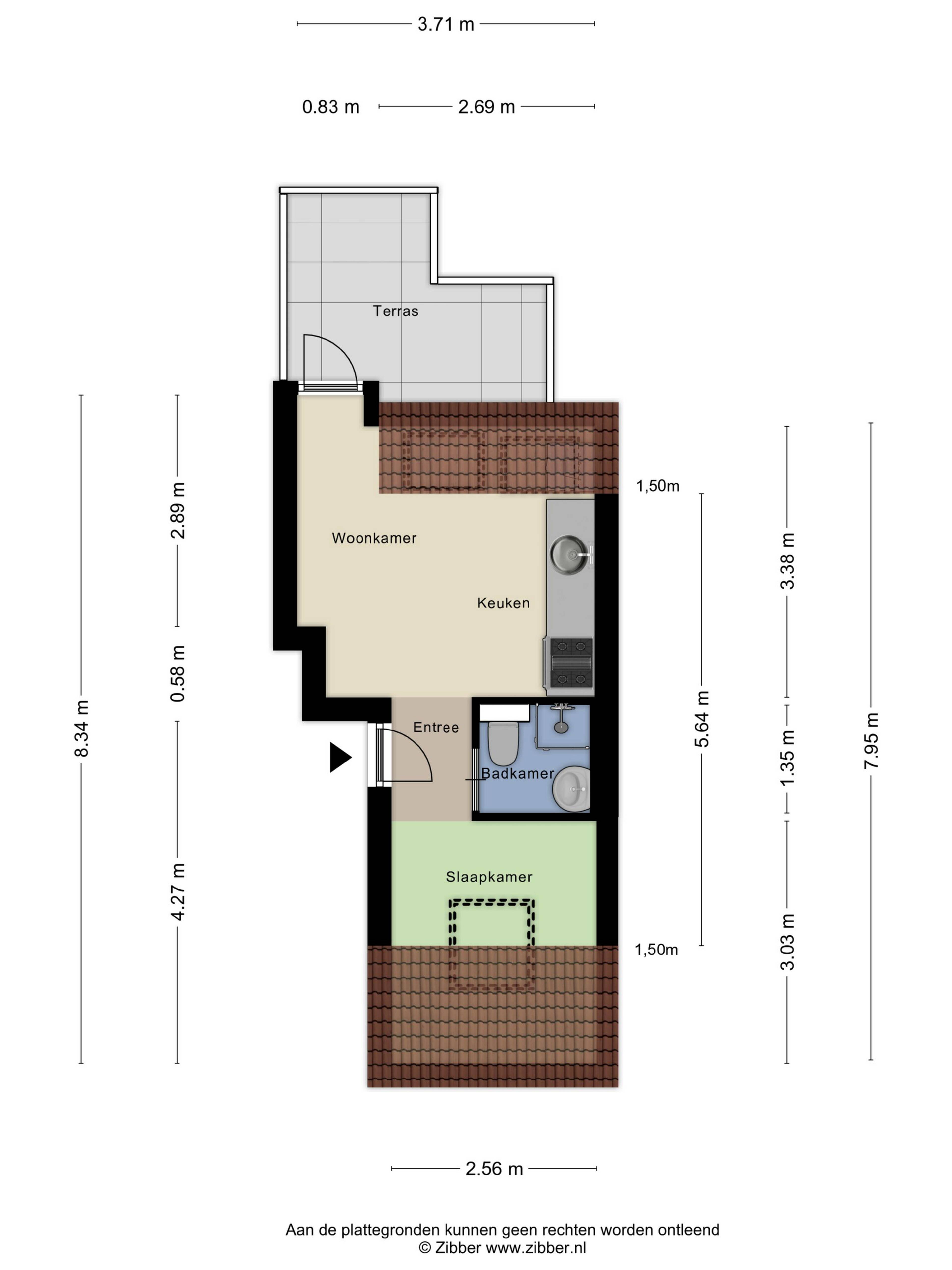
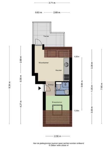
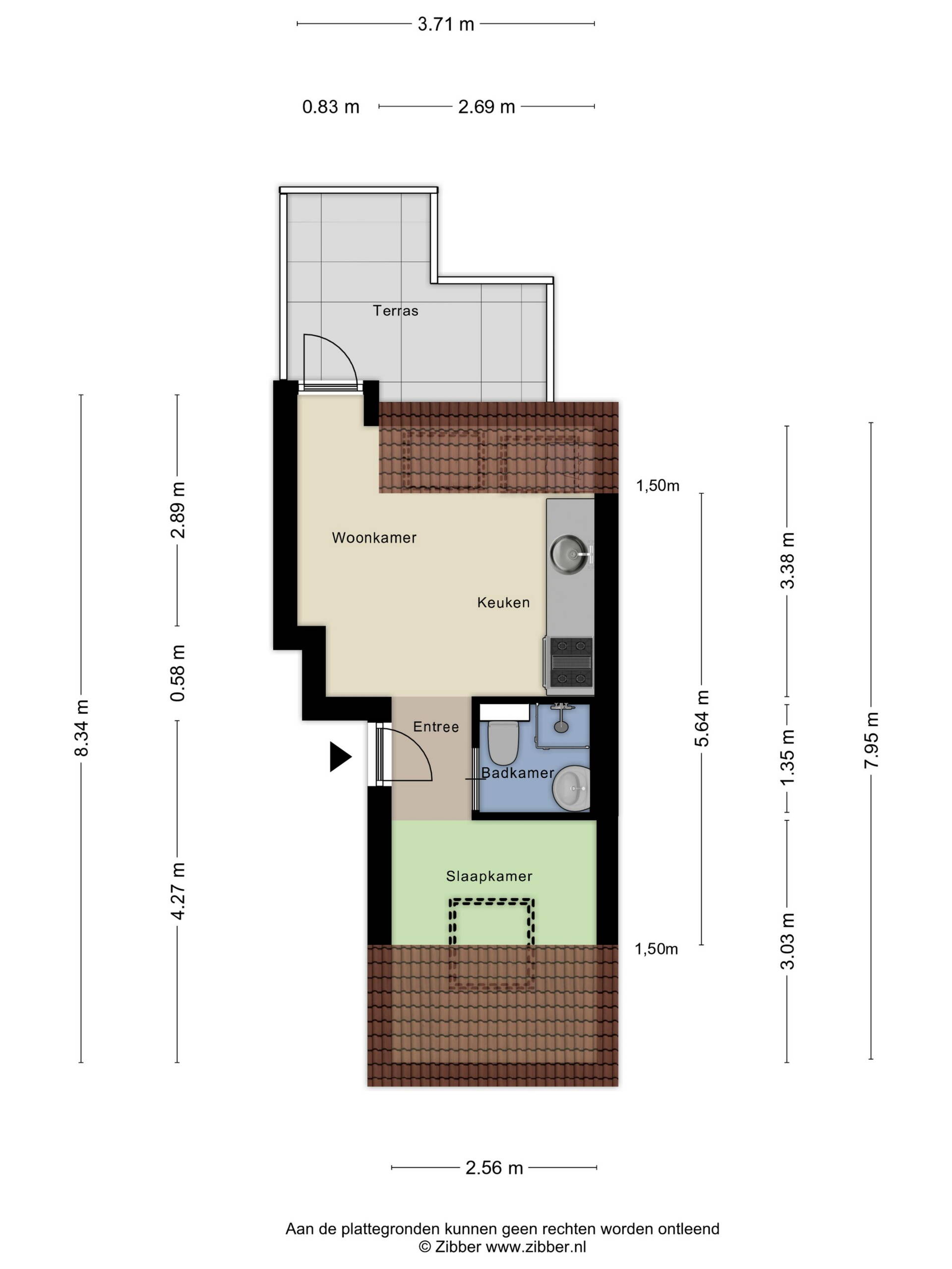
INDELING Middels het gemeenschappelijke trappenhuis bereik je het appartement op de vierde (bovenste) verdieping. Aan de achterzijde bevind zich de lichte woonkamer met toegang tot balkon en open keuken. De open keuken is voorzien van diverse inbouwapparatuur waaronder een koelkast met vriesgedeelte, 4-pits gaskookplaat, RVS afzuigkap en een combi magnetron/oven. Hier is tevens de aansluiting voor de wasmachine. De fraaie badkamer is voorzien van een toilet, inloopdouche, wastafel en een designradiator. De slaapkamer is gelegen aan de voorzijde.
VERENIGING VAN EIGENAARS De Vereniging van Eigenaars is genaamd “Vereniging van Eigenaars Van het perceel Jan Bernardusstraat 18-22 te Amsterdam” en wordt professioneel beheerd door VvE beheer Amsterdam. De servicekosten bedragen ca. € 75,- per maand en er is een MJOP aanwezig.
BIJZONDERHEDEN
- In 2011 geheel gerenoveerd;
- Gelegen op eigen grond;
- Ideaal ingedeeld;
- Goed onderhouden, direct te betrekken;
- Perfect voor een starter of studerend kind of als pied-a-terre;
- Energielabel E;
- Gelegen op een top locatie;
- ruim 18m2 vloeroppervlak
- Ruim balkon van 7m2 op het Zuid- oosten;
- Gewenste oplevering in overleg;
Compact, extremely charming and well maintained studio apartment of over 18 m2 with lovely (roof) terrace (approx. 7m2) located in the Weesperzijde. It is an apartment on the 4th and top floor, located on private land and is quickly available.
AREA The apartment is part of a characteristic building from 1907 in the popular Weesperzijde neighborhood between Amstel and Wibautstraat. A great location on the edge of the center and within walking distance of the Rivierenbuurt, De Pijp, theater Carré and the Amstel Hotel. Around the corner are several catering establishments such as De Ysbreeker, Hesp, restaurant Loetje, the Volkshotel, Bam Boa, Rijssel and Trump. The Weesperzijde on the Amstel is a place where you can relax by the water in summer and, weather permits, even barbecue and swim. For runners and cyclists, it is a good starting point to run or bike along the river Amstel. In conclusion, a wonderful neighborhood! The property is easily accessible by both car and public transport. The apartment is conveniently located to various roads such as Ring A10, A1 and A2. Metro station Wibautstraat and Amstel Station are within walking distance.
LAYOUT Through the communal staircase you reach the apartment on the fourth (top) floor. At the rear is the bright living room with access to balcony and open kitchen. The open kitchen is equipped with various appliances including a refrigerator with freezer, 4-burner gas hob, stainless steel extractor and a microwave/oven. This is also where the connection for the washing machine is at. The beautiful bathroom has a toilet, walk-in shower, sink and a design radiator. The bedroom is located at the front.
OWNERS' ASSOCIATION The Owners' Association is called “Vereniging van Eigenaars Van het perceel Jan Bernardusstraat 18-22 te Amsterdam” and is professionally managed by VvE beheer Amsterdam. The service costs are approximately € 75, - per month and there is a MJOP present.
HIGHLIGHTS
- Completely renovated in 2011;
- Located on freehold land;
- Smart configuration;
- Well maintained, ready to move in;
- Perfect for a starter or studying child or as a pied-a-terre;
- Energy label E;
- Located in a top location;
- Over 18m2 floor space
- Spacious balcony of 7m2 facing south-east;
- Desired transfer in to be discussed;