In het onder architectuur verbouwde appartementencomplex “Lightfactory” mogen wij u een wel heel bijzonder appartement aanbieden. Een 4 kamer appartement van ca. 129m2 vloeroppervlak, verdeeld over 3 etages. Aan de voorzijde heeft u een prachtig en vrij uitzicht over de Schinkel, aan de achterzijde geniet u van een ca. 22 meter diepe achtertuin met achterom. De woning beschikt tevens over een parkeerplaats op een afgesloten terrein.
Dit object heeft een eigen woningwebsite! Hierop kunt u overzichtelijk alle informatie vinden. Interesse? sloterkade161b.nl
LIGGING & BEREIKBAARHEID
De Lightfactory ligt op loopafstand van het Hoofddorpplein, de Zeilstraat, de Koninginneweg en de Amstelveenseweg met een ruime keus aan winkels, speciaalzaken, goede restaurants en hippe bars.
Het Vondelpark en het Amsterdamse Bos liggen op een steenworp afstand, maar ook de stad uit gaat vlot via de nabijgelegen uitvalswegen (A4 en A10).
Met het openbaar vervoer is de Sloterkade ook prima bereikbaar; er zijn haltes voor de diverse tramlijnen en buslijnen in de Zeilstraat, het Hoofddorpplein en de Amstelveenseweg.
Het metrostation Heemstedestraat is in vijf minuten te bereiken.
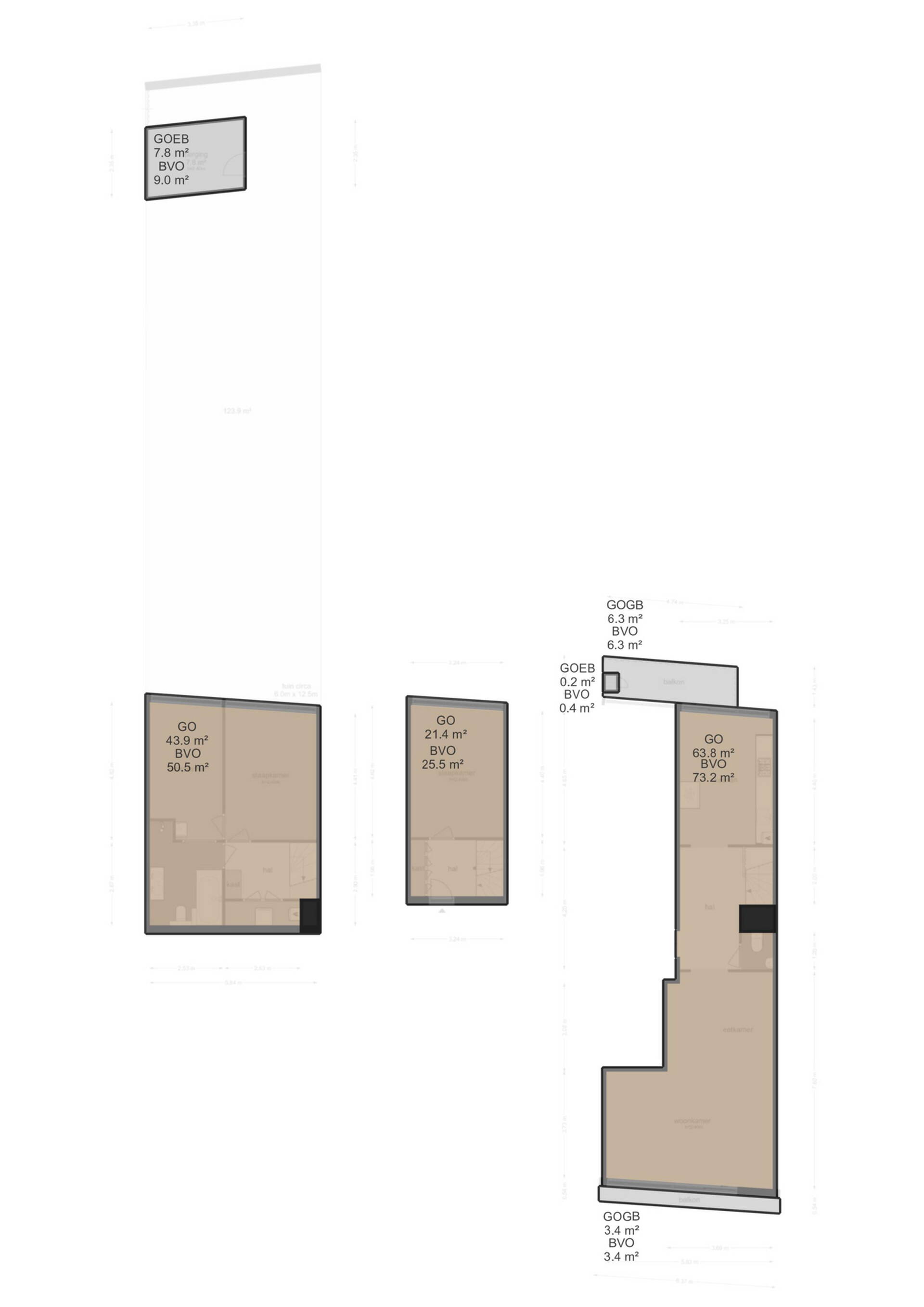
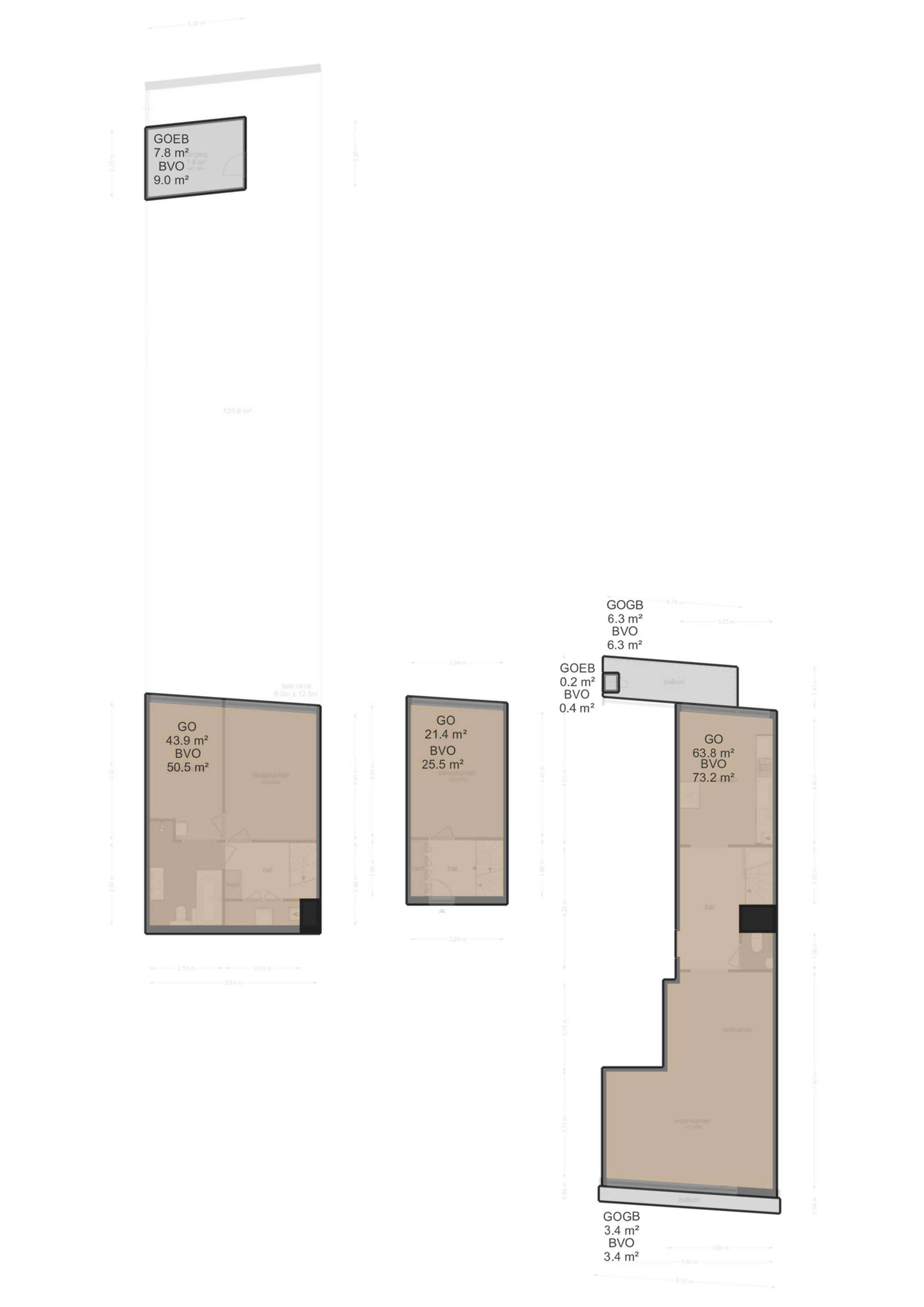
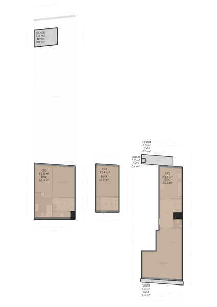
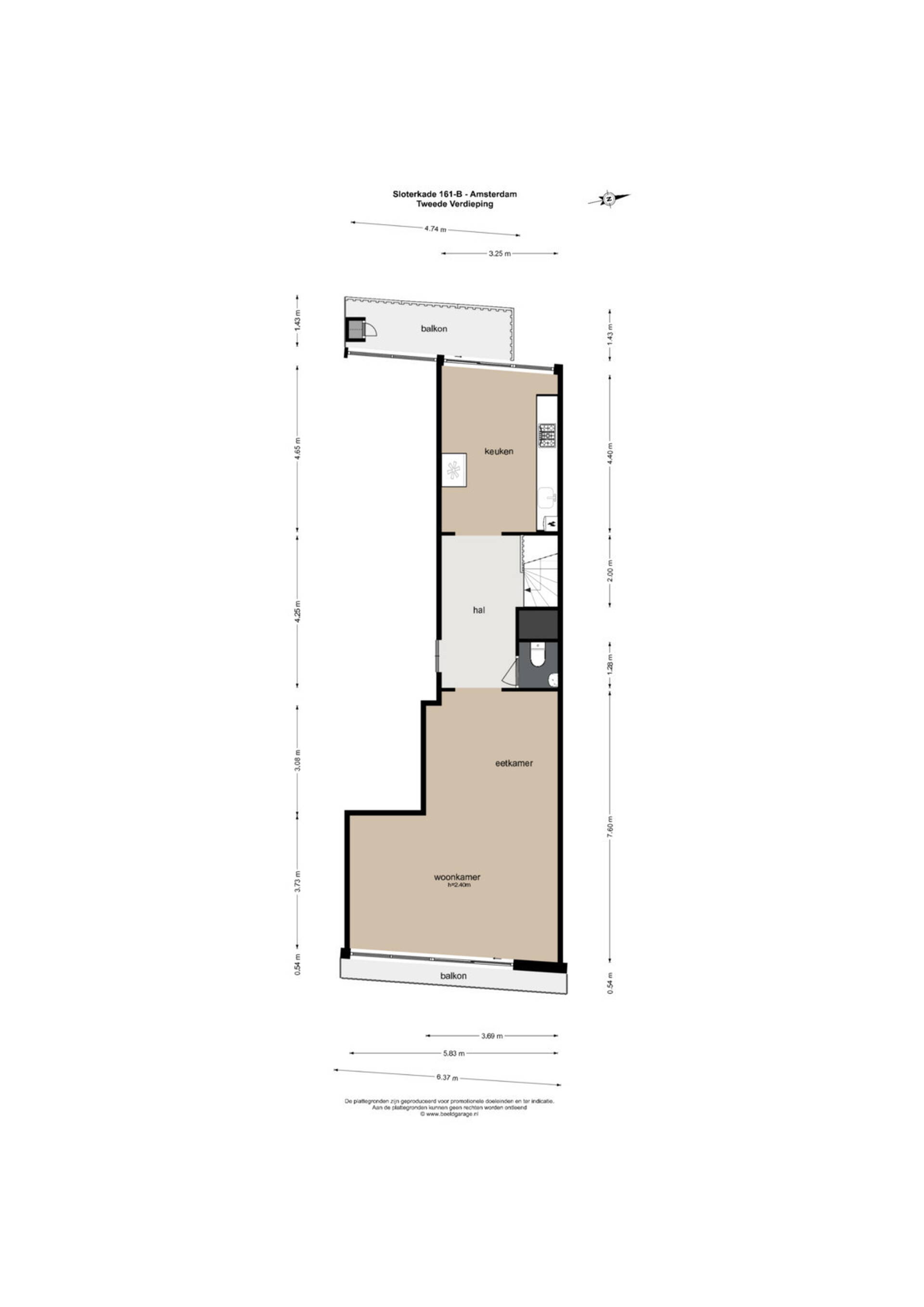
INDELING:
Via de gemeenschappelijke ruime entree op de begane grond neemt u de lift of de trap en komt u aan bij de voordeur op de tweede verdieping. Dit is tevens de bovenste verdieping van dit appartement. Aan de voorzijde is de woonkamer die overgaat in een eetgedeelte. De hoogte van de ramen/schuifdeur loopt van vloer tot plafond en creëert ruimtelijk effect, levert veel lichtinval en geeft bovendien prachtig en vrij zicht op het water. In het midden van deze etage bevindt zich de aparte wc en interne trap naar ondergelegen etages. Aan de achterzijde de ruime eetkeuken. Grenzend aan deze keuken heeft u een ruim balkon. Deze is georiënteerd op het westen en kijkt uit over o.a. uw eigen achtertuin. Deze woning is voorzien van mooie hardhouten vloer.
De middelste etage kent een ruime (slaap)kamer die aan de achterzijde is gelegen. Ook hier weer grote ramen die uitkijken over uw tuin. Op de overloop van deze tussenverdieping bevindt zich kastruimte en nog een aparte (tweede) voordeur.
De laagst gelegen etage heeft twee riante slaapkamers die beide, middels schuifdeuren, toegang geven tot de fantastische tuin. Beide met de mooie houten vloer als in de woonkamer. Verder vind u op deze etage de ruime badkamer met ligbad, inloopdouche, wc en wastafelmeubel. De overloop biedt plaats voor kastruimte, cv en technische installatie.
De tuin is ca. 22 meter diep en 6 meter breed en heeft een achterom naar de parkeerplaats. Achter in de tuin heeft u de beschikking over een tuinhuis. De tuin is onderhoudsvriendelijk aangelegd en biedt verschillende plaatsen waar u heerlijk van de zon en schaduw kan genieten.
Lightfactory
De Sloterkade was ooit de rand van het dorp Sloten. Deze gemeente werd door Amsterdam rond 1900 geannexeerd. Al voor die tijd had er zich op deze locatie, nabij de Zeilbrug, een chemische wasserij en ververij gevestigd met hierop het fabriekscomplex inclusief watertoren.
Door de tijd veranderde dit voormalige fabriekscomplex van grootte en functie. De industrie maakte plaats voor kleinschaliger productie en nijverheid. Het complex huisvestte als laatste een producent van lichtarmaturen. Naar het winnende ontwerp van architectenbureau Köther, Salman en Koedijk Architecten werd het terrein, incl. naastgelegen locatie van voormalig stadsbioscoop “Victoria” getransformeerd naar 69 appartementen met de toepasselijke naam “The Lightfactory”, verwijzend naar laatste industriële functie.
Het bestaande gebouw is geschikt gemaakt voor grootstedelijke loftwoningen met een verdiepingshoogte van 4 meter. In de nieuwbouw worden 2 tot 3-laagse stadswoningen ontsloten vanaf de straat; daarboven bevinden zich corridorwoningen die optimaal profiteren van het uitzicht over het water en de middagzon aan het rustige binnengebied.
PARKEREN:
Op de openbare weg geldt betaald parkeren en parkeren middels een vergunning systeem. Volgens informatie van de website van gemeente Amsterdam is het niet mogelijk een parkeervergunning te verkrijgen (wachtlijstgegevens per 10 september 2024, vergunningsgebied Zuid 2.3).
BIJZONDERHEDEN
-Ideaal gelegen in bruisende Hoofddorppleinbuurt in Amsterdam Zuid;
-Bijzonder licht maisonnette appartement van 129m² (NEN2580);
-frans balkon voorzijde, balkon en tuin aan de achterzijde;
- Eigen parkeerplaats inbegrepen;
-Erfpacht afgekocht t/m 31-08-2047;
- Overstap naar eeuwigdurende erfpacht onder gunstige voorwaarden vast laten zetten met ingang van 01 september 2047;
-Appartement is volledig geïsoleerd;
- Energielabel B;
- Centrale verwarming middels eigen CV-ketel;
- Verbouwd in 1998 tot appartementencomplex;
-Complex voorzien van lift;
-Professionele VvE, servicekosten €273.40 p/m;
-Oplevering in overleg, medio maart/april 2025
- Bekijk de eigen woningwebsite van deze woning op sloterkade161b.nl.