RUSTIG WONEN MET VOOR- ÉN ACHTERTUIN – GERARD DOULAAN 22, AMSTELVEEN
Welkom bij Gerard Doulaan 22, een fijne tussenwoning uit 1955 gelegen in een rustige, groene straat nabij het Stadshart van Amstelveen. Deze woning combineert een prettige woonomgeving met verrassend veel ruimte, zowel binnen als buiten. Met een voor- en achtertuin, een zonnige achtertuin op het zuiden en een volwaardige zolder met dakkapellen aan zowel de voor- als achterzijde, is dit een ideale woning voor gezinnen of voor wie op zoek is naar extra leefruimte.
EEN DEGELIJKE GEZINSWONING MET VEEL RUIMTE
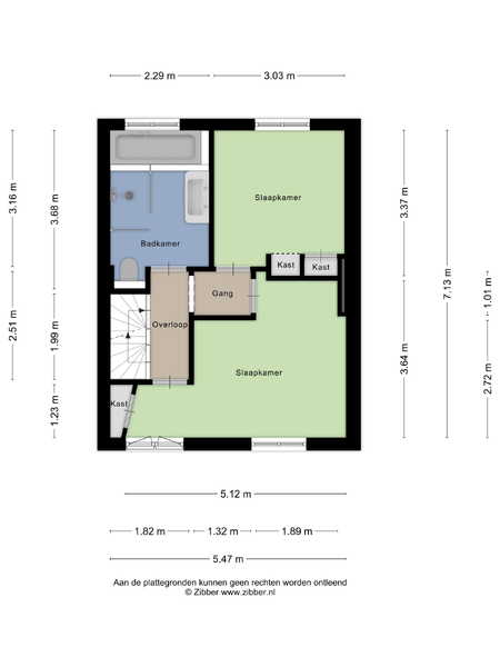
De woning beschikt over circa 102 m² gebruiksoppervlakte, verdeeld over drie volwaardige woonlagen. De zolder is dankzij de dakkapellen aan beide zijden opvallend ruim en licht en vormt een uitstekende extra slaapkamer, werkruimte of speelverdieping. De indeling is praktisch en biedt volop mogelijkheden om de woning verder naar eigen wens te moderniseren en in te richten.
VOOR- ÉN ACHTERTUIN, MET ZON AAN DE ACHTERZIJDE
Een groot pluspunt van deze woning is de aanwezigheid van zowel een voortuin als een achtertuin. De achtertuin ligt op het zuiden, waardoor je hier vrijwel de hele dag van de zon kunt genieten. Een heerlijke plek voor lange zomeravonden, spelende kinderen of gewoon rustig buiten zitten. Met een perceeloppervlakte van 141 m² is er voldoende buitenruimte zonder dat het onderhoud te veel wordt.
RUSTIG WONEN, DICHT BIJ ALLES
Gerard Doulaan is een rustige en geliefde straat in Amstelveen, met veel groen en weinig verkeer. Tegelijkertijd woon je hier op korte afstand van het Stadshart met een breed aanbod aan winkels, horeca en voorzieningen. Scholen, sportclubs en openbaar vervoer zijn goed bereikbaar, wat deze locatie zeer geschikt maakt voor dagelijks comfortabel wonen.
De verkoop vindt plaats met een niet-zelfbewoningsclausule, ouderdomsclausule en asbestclausule.
DETAILS
– Tussenwoning
– Gebruiksoppervlakte ca. 102 m²
– Perceeloppervlakte 141 m²
– Voor- en achtertuin
– Achtertuin gelegen op het zuiden
– Zolder met dakkapel aan voor- en achterzijde
– Bouwjaar 1955
– Energielabel D
– Rustige, groene ligging nabij het Stadshart van Amstelveen
– Verkoop met niet-zelfbewoningsclausule, ouderdomsclausule en asbestclausule
QUIET LIVING WITH FRONT AND BACK GARDEN – GERARD DOULAAN 22, AMSTELVEEN
Welcome to Gerard Doulaan 22, a well-laid-out mid-terrace house from 1955, located in a quiet, green street close to the centre of Amstelveen. This property offers a comfortable living environment with generous indoor space and pleasant outdoor areas. With both a front and a south-facing back garden, as well as a spacious attic featuring dormer windows at both the front and rear, this home is perfectly suited for families or anyone in need of extra space.
A SOLID FAMILY HOME WITH PRACTICAL LAYOUT
The house offers approximately 102 m² of living space, spread over three full floors. The attic level is particularly spacious and bright thanks to dormers on both sides, making it ideal as an additional bedroom, home office or playroom. The layout is functional and provides plenty of scope to modernise the property to your own taste.
FRONT AND SOUTH-FACING BACK GARDEN
One of the highlights of this property is the presence of both a front and back garden. The back garden faces south, allowing you to enjoy sunlight throughout the day. It’s an ideal spot for outdoor dining, relaxing or letting children play safely. With a plot size of 141 m², the outdoor space is well balanced: generous yet easy to maintain.
PEACEFUL LIVING CLOSE TO AMENITIES
Gerard Doulaan is a quiet and popular residential street with plenty of greenery and minimal traffic. At the same time, the lively Stadshart of Amstelveen — with shops, restaurants and all daily amenities — is just a short distance away. Schools, sports facilities and public transport are all conveniently nearby, making this a highly practical location for everyday living.
The sale includes a non-occupancy clause, age clause and asbestos clause.
DETAILS
– Mid-terrace house
– Living area approx. 102 m²
– Plot size 141 m²
– Front and back garden
– South-facing back garden
– Attic with dormer windows at front and rear
– Built in 1955
– Energy label D
– Quiet, green location near Amstelveen city centre
– Sale with non-occupancy clause, age clause and asbestos clause