Bezichtigingen direct in te plannen via de website van De Makelaars van Amsterdam
English text below
Derde Schinkelstraat 54-H, Amsterdam
Sfeervolle benedenwoning met tuin op eigen grond in de geliefde Schinkelbuurt
Welkom bij Derde Schinkelstraat 54-H. Een lichte en goed ingedeelde benedenwoning van circa 51 m², met een fijne achtertuin op het noorden en volop mogelijkheden tot uitbouw. De woning is gelegen op EIGEN GROND en maakt deel uit van een actieve en gezonde VvE.
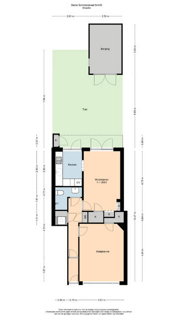
Indeling
Je betreedt de woning via de centrale gang. Aan de rechterzijde bevindt zich de slaapkamer, gelegen aan de voorzijde van de woning. Deze kamer is licht, rustig en biedt voldoende ruimte voor een tweepersoonsbed en kledingkast.
Loop je verder door de gang, dan kom je bij de badkamer, voorzien van een douche, wastafel en opbergmeubel. Aansluitend bereik je de woonkamer met open keuken aan de achterzijde van de woning. De woonkamer is heerlijk licht dankzij de grote openslaande deuren naar de tuin en biedt ruimte voor zowel een zit- als eethoek. De keuken is praktisch ingedeeld en voorzien van diverse inbouwapparatuur.
De achtertuin is gelegen op het noorden en biedt een rustige plek om buiten te zitten, met volop privacy. Achterin bevindt zich een berging.
De woning heeft hier en daar wat aandacht nodig, denk aan het moderniseren van de badkamer en keuken. Verder is er de mogelijkheid tot uitbouwen. Kortom: een huis met karakter en kansen om het volledig naar eigen smaak aan te passen.
Omgeving
De woning ligt in de gewilde Schinkelbuurt in Amsterdam-Zuid, een rustige en groene wijk met uitstekende voorzieningen. Op loopafstand vind je het Hoofddorpplein, de Zeilstraat en de Amstelveenseweg, met tal van winkels, supermarkten en gezellige horecagelegenheden zoals Poppy’s, Lokaal van de Stad en Nana’s.
Voor ontspanning en recreatie liggen het Vondelpark, het Rembrandtpark, het Nieuwe Meer en het Amsterdamse Bos op korte afstand. Ook sportvoorzieningen zoals Basic-Fit, Sportpark De Schinkel en diverse hockey- en voetbalclubs bevinden zich in de buurt.
De bereikbaarheid is uitstekend: tram- en buslijnen, NS-stations Zuid en Lelylaan en de Ring A10 liggen vlakbij. Schiphol is binnen 10 minuten te bereiken.
Bijzonderheden
•Gelegen op EIGEN GROND
•Circa 51 m² woonoppervlak
•Woonkamer met openslaande deuren naar de tuin
•Ruime tuin met berging
•Mogelijkheid tot uitbouw (mits toestemming vve, buren reeds gerealiseerd)
•Actieve en gezonde VvE
•Energielabel C
•Servicekosten €177,29 per maand
•Oplevering in overleg, kan snel
Deze woning wordt aangeboden conform artikel 7:17 lid 6 van het Burgerlijk Wetboek.
De opgegeven kenmerken en informatie zijn met de nodige zorgvuldigheid
samengesteld. Er wordt echter geen aansprakelijkheid aanvaard voor eventuele
onvolledigheden, onjuistheden of de gevolgen daarvan. Alle opgegeven maten en
oppervlakten zijn indicatief. De genoemde kenmerken dienen uitsluitend ter aanduiding.
De NEN2580-clausule en ouderdomsclausule zijn van toepassing op deze woning.
Viewings can be scheduled directly via the website of De Makelaars van Amsterdam.
Derde Schinkelstraat 54-H, Amsterdam
Charming ground-floor apartment with garden on private land in the popular Schinkel neighborhood
Welcome to Derde Schinkelstraat 54-H. A bright and well-laid-out ground-floor apartment of approximately 51 m², featuring a pleasant north-facing backyard and ample potential for extension. The property is situated on OWN LAND and is part of an active and healthy homeowners’ association (VvE).
Layout
You enter the apartment via a central hallway. On the right-hand side is the bedroom, located at the front of the property. This room is bright, quiet, and spacious enough for a double bed and wardrobe.
Walking further down the hallway, you reach the bathroom, equipped with a shower, sink, and storage unit. Beyond the bathroom is the living room with open kitchen at the rear of the apartment. The living room is filled with natural light thanks to the large French doors opening onto the garden and offers space for both a sitting and dining area. The kitchen is practical and equipped with various appliances.
The backyard faces north, providing a private and tranquil outdoor space. At the rear of the garden, there is a storage shed.
The apartment requires some attention, such as modernizing the kitchen and bathroom. There is also the possibility to extend. In short: a home with character and opportunities to fully customize it to your own taste.
Neighborhood
The property is located in the desirable Schinkel neighborhood in Amsterdam-Zuid, a quiet and green area with excellent amenities. Within walking distance, you will find the Hoofddorpplein, Zeilstraat, and Amstelveenseweg, offering a variety of shops, supermarkets, and restaurants such as Poppy’s, Lokaal van de Stad, and Nana’s.
For leisure and recreation, Vondelpark, Rembrandtpark, Nieuwe Meer, and Amsterdamse Bos are nearby. Sports facilities such as Basic-Fit, Sportpark De Schinkel, and various hockey and football clubs are also easily accessible.
The apartment has excellent transport connections: tram and bus lines, Amsterdam Zuid and Lelylaan train stations, and the A10 ring road are close by. Schiphol Airport can be reached within 10 minutes by car.
Features
•Located on OWN GROUND
•Approximately 51 m² of living space
•Living room with French doors to the garden
•Spacious backyard with storage shed
•Potential for extension (permission from the vve is needed, neighbors already completed)
•Active and healthy VvE
•Energy label C
•Service costs €177,29 per month
•Delivery in consultation, can be fast
This property is offered in accordance with Article 7:17 paragraph 6 of the Dutch Civil
Code. The stated features and information have been compiled with the utmost care.
However, no liability is accepted for any inaccuracies, incompleteness or consequences
thereof. All stated dimensions and surfaces are indicative. The listed features are
intended as a general description only. The NEN2580 clause and an Age Clause apply
to this property.