COMFORTABEL WONEN MET EEN MODERNE UITSTRALING EN EEN AVONDZONNETJE OP HET BALKON
Ben je op zoek naar een instapklare woning met een moderne keuken, strak afgewerkte badkamer en een energielabel A? Dan is dit ruime 4 kamer appartement in Amsterdam precies wat je zoekt. Ideaal voor jonge gezinnen, stellen of thuiswerkers die comfort, bereikbaarheid en een fijne buitenruimte zoeken.
MODERN, DUURZAAM EN HELEMAAL AF
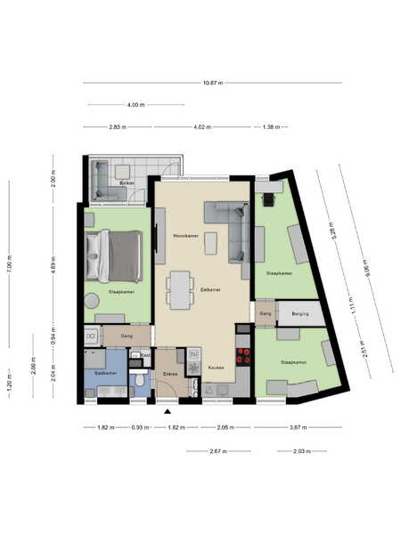
Welkom aan de Peursumstraat 16, waar eigentijds woongenot en praktische luxe samenkomen. Dit appartement van circa 85,8 vierkante meter is in 2025 grondig onder handen genomen en dat merk je aan alles. De keuken is een pareltje voor kookliefhebbers: gloednieuw en uitgerust met hoogwaardige Etna apparatuur. Denk aan een inductiekookplaat waarop je met precisie kunt koken, een oven op ooghoogte zodat je nooit meer hoeft te bukken, een vaatwasser met binnenverlichting en een indrukwekkende koelkast in combinatie met een grote vriezer die elke voorraadkast jaloers maakt.
En over opslag gesproken: in het appartement zelf vind je nog een ruime voorraadkast of berging – ideaal voor proviand, schoonmaakspullen of gewoon alles wat je netjes uit het zicht wilt houden. Daarnaast is er een aparte kast met aansluitingen voor je wasmachine en droger. Alles op zijn plek, alles georganiseerd.
De badkamer en het separate toilet zijn eveneens in 2025 volledig vernieuwd. Fris, modern en klaar voor jarenlang zorgeloos gebruik. Voeg daar de nieuwe hr ketel aan toe, geplaatst in 2025, en je hebt een woning die niet alleen comfortabel is, maar ook nog eens energiezuinig. Energielabel A bevestigt dat je hier goed zit als het om duurzaamheid gaat.
Met drie goed bemeten slaapkamers biedt deze woning volop ruimte, of je nu kinderen hebt, thuis werkt of gewoon graag een logeerkamer of hobbyruimte hebt. Vanuit zowel de woonkamer als de grote slaapkamer stap je zo het balkon van zes vierkante meter op, perfect gelegen op het westen. Dat betekent lange zomeravonden in de zon met een goed glas wijn of een gezellig etentje bij het laatste licht van de dag.
Op de begane grond vind je nog een extra pluspunt: een berging van zes vierkante meter met elektra. Ideaal om je elektrische fiets op te laden of om extra spullen netjes op te bergen.
LOCATIE MET ALLE VOORZIENINGEN BINNEN HANDBEREIK
De woning ligt in een rustige straat, maar wel op steenworp afstand van het winkelcentrum. Handig voor de dagelijkse boodschappen. Reizen is hier een fluitje van een cent. Binnen twintig minuten ben je met de metro in hartje Amsterdam, of rij je via de A2 zo naar Utrecht. De parkeervergunning kost slechts 77 euro per jaar en is zonder wachttijd aan te vragen – een zeldzaamheid in Amsterdam.
De vereniging van eigenaars is professioneel beheerd en de maandelijkse servicekosten bedragen 211,40 euro. De erfpacht is afgekocht tot en met 15 augustus 2032, dus voorlopig geen zorgen daarover.
BIJZONDERHEDEN
• Vier kamer appartement
• Circa 85,8 vierkante meter woonoppervlakte
• Energielabel A
• Erfpacht afgekocht tot en met 15 augustus 2032
• Balkon van circa zes vierkante meter op het westen
• Berging van circa zes vierkante meter met elektra op de begane grond
• Drie slaapkamers
• Grote voorraadkast of inpandige berging in het appartement
• Aparte kast met aansluitingen voor wasmachine en droger
• Servicekosten vereniging van eigenaars: € 221,40 euro per maand
Asbestclausule en ouderdomsclausule zijn van toepassing.
De verkoop vindt plaats via een Amsterdamse notaris naar keuze van de koper, conform het model koopakte Amsterdam.
Aan deze tekst en presentatie kunnen geen rechten worden ontleend.
KOM ZIEN, VOEL EN ERVAAR HET ZELF
Van het warme zonlicht op het balkon tot het zachte gezoem van de vaatwasser en de geur van versgemalen koffie in je gloednieuwe keuken – deze woning prikkelt al je zintuigen. Grijp deze kans en plan vandaag nog een bezichtiging. Dit soort instapklare pareltjes zijn zeldzaam. Bel of mail snel voor een afspraak en wie weet sta jij straks met je eigen sleutel in de hand.
***English***
MODERN LIVING WITH A TOUCH OF LUXURY AND A WEST FACING BALCONY
Looking for a move in ready apartment with a brand new kitchen, modern bathroom and energy label A? This spacious four room apartment in Amsterdam ticks all the boxes. Perfect for young families, couples or remote workers seeking comfort, accessibility and a lovely outdoor space.
SLEEK, SUSTAINABLE AND COMPLETELY UPDATED
Welcome to Peursumstraat 16, where modern convenience meets everyday comfort. This approximately 85.8 square meter apartment was thoroughly renovated in 2025 and it shows. The kitchen is a dream for anyone who loves to cook. Brand new and fully equipped with top quality Etna appliances. Think of an induction cooktop, an eye level oven, a dishwasher with interior lighting and an impressive refrigerator combined with a large freezer that would make any pantry jealous.
Speaking of storage, inside the apartment you will also find a spacious pantry or internal storage room. Perfect for organizing your supplies, storing cleaning products or just keeping everything tidy and out of sight. There is also a separate closet with connections for a washing machine and dryer. Everything in its place.
The bathroom and separate toilet were also fully renovated in 2025. Fresh, modern and ready for years of carefree living. Add to that the brand new high efficiency boiler, installed in 2025, and you have a home that is both comfortable and energy efficient. With energy label A, you are future proof.
With three well sized bedrooms, there is plenty of room whether you have kids, work from home or just want a guest room or hobby space. Both the living room and master bedroom open onto the six square meter balcony, ideally facing west. That means warm summer evenings in the sun with a glass of wine or a relaxed dinner as the daylight fades.
On the ground floor there is another bonus, a six square meter storage room with electricity. Perfect for charging your electric bike or neatly storing seasonal items.
FEATURES
• Four room apartment
• Approximately 85.8 square meters of living space
• Energy label A
• Leasehold paid off until 15 August 2032
• Balcony of approximately six square meters facing west
• Storage room of approximately six square meters with electricity on the ground floor
• Three bedrooms
• Spacious pantry or internal storage room
• Separate closet with washing machine and dryer connections
• Homeowners association service costs: € 221.40 euros per month
An asbestos clause and old building clause apply.
Sale will take place via a notary of the buyer’s choice, located in Amsterdam and in accordance with the Amsterdam model purchase agreement.
No rights can be derived from this text or presentation.
COME SEE, FEEL AND EXPERIENCE IT FOR YOURSELF
From the warmth of the sun on your balcony to the quiet hum of the dishwasher and the smell of fresh brewed coffee in your new kitchen, this home engages all your senses. Do not miss out. Schedule a viewing today, because gems like this do not stay on the market for long.