Commelinstraat 33-2 — stijlvol en rustig wonen in bruisend Amsterdam-Oost
In één van de mooiste straten van de Dapperbuurt ligt dit moderne en lichte 3-kamerappartement van ca. 64 m², gelegen op eigen grond en voorzien van energielabel B. Het pand is in 2010 gesplitst en destijds volledig gemoderniseerd, waardoor de woning direct te betrekken is.
*scroll down for english transcript*
De woonkamer biedt veel natuurlijk licht en een prettig gevoel van privacy. De moderne keuken is uitgerust met een groot fornuis met oven, losse koel-vriescombinatie en een ingebouwde vaatwasser. Hier kookt u comfortabel, met voldoende ruimte en praktische indeling.
De luxe badkamer beschikt over een ligbad, inloopdouche en wastafel — een hoogwaardige afwerking die zorgt voor dagelijks comfort. De hoofdslaapkamer is ruim en rustig gelegen; de tweede kamer is ideaal als logeer- of werkkamer.
De combinatie van lichtinval, moderne afwerking en rust maakt dit appartement bijzonder geschikt voor jonge professionals die stedelijke dynamiek zoeken zonder aan wooncomfort in te leveren.
Het appartement ligt in een statige, groene straat met karakter. Rondom bevinden zich talloze cafés, restaurants, musea en parken. De Dappermarkt en Oosterpark liggen op korte loopafstand. Dankzij deze centrale ligging is er altijd iets te ontdekken, terwijl de woning zelf een rustige woonomgeving biedt.
Pluspunten:
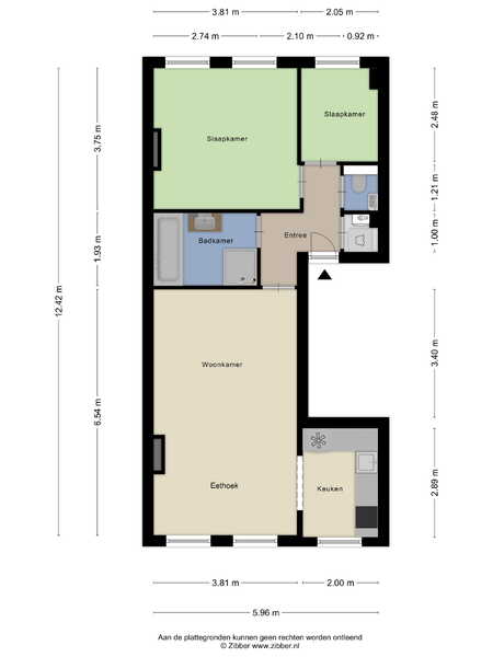
•64 m² woonoppervlak
•3 kamers, waaronder twee volwaardige slaapkamers
•Bouwjaar 1880 doch volledig gemoderniseerd (2010)
•Energielabel B
•Eigen grond (geen erfpacht)
•Licht, privacy en moderne afwerking
•Instapklaar, geen verbouwing nodig
•Actieve en professioneel beheerde VvE
•Servicekosten ca. € 160,- per maand
Een uitstekend appartement voor wie comfortabel wil wonen in een populaire stadswijk, met alle voorzieningen binnen handbereik — en toch thuiskomt in een rustige straat.
Wanneer je hier komt bezichtigen val je gegarandeerd als een blok voor deze woning. We bieden genoeg mogelijkheden voor een bezichtiging dus boek online een afspraak of wandel binnen in het weekend wanneer ik een open huis organiseer. Ik kijk er naar uit om jou/jullie in deze fraaie woning rond te leiden.
--------------------------------------------------------------------------------------------------------------------------------------------------------------------------
Commelinstraat 33-2 — Stylish and Peaceful Living in Vibrant Amsterdam East
Situated on one of the most beautiful streets in the Dapperbuurt, this modern and bright two-bedroom apartment of approximately 64 m² is located on freehold land and comes with energy label B. The building was subdivided and completely modernised in 2010, making the property ready to move into immediately.
The living room offers plenty of natural light and a pleasant sense of privacy. The modern kitchen is equipped with a large stove with oven, a freestanding fridge-freezer combination, and a built-in dishwasher. A practical layout with enough space ensures comfortable cooking.
The luxurious bathroom features a bathtub, walk-in shower, and washbasin — a high-quality finish that provides comfort on a daily basis. The main bedroom is spacious and quietly located, while the second room is ideal as a guest room or home office.
The combination of natural light, modern finishes, and tranquility makes this apartment particularly appealing to young professionals seeking urban vibrancy without compromising on comfort.
The apartment is located in a stately, green street full of character. In the surrounding area you’ll find numerous cafés, restaurants, museums, and parks. The Dapper Market and Oosterpark are only a short walk away. Thanks to its central location, there is always something to discover, while the home itself offers a peaceful living environment.
Highlights:
• 64 m² of living space
• Two bedrooms
• Originally built in 1880, fully modernised in 2010
• Energy label B
• Freehold land (no ground lease)
• Light, privacy, and modern finishes
• Ready to move in — no renovation required
• Active and professionally managed homeowners’ association
• Service charges approx. €160 per month
An excellent apartment for those who want to live comfortably in a popular urban district, with every amenity within reach — while still coming home to a quiet street.
When you come for a viewing, you are guaranteed to fall in love with this property. We offer plenty of viewing options, so book an appointment online or drop by during the weekend when I host an open house. I look forward to showing you around this beautiful home.