English text below
Wijttenbachstraat 45B – Prachtig appartement in neorenaissancebouwstijl met het wooncomfort van nu!
Karakteristiek pand uit 1886, volledig aangepakt naar moderne bouwstandaarden, inclusief nieuwe fundering, nieuwe vloer in het souterrain, nieuw dak, geluids- en thermische isolatie en energielabel A+. Ook de typisch Amsterdamse gevelornamenten werden gereconstrueerd. Deze bijzondere, instapklare woning onderscheidt zich van het standaard appartement in Amsterdam door de zeldzame combinatie van historie, kwaliteit en wooncomfort op een toplocatie in Amsterdam-Oost.
Indeling
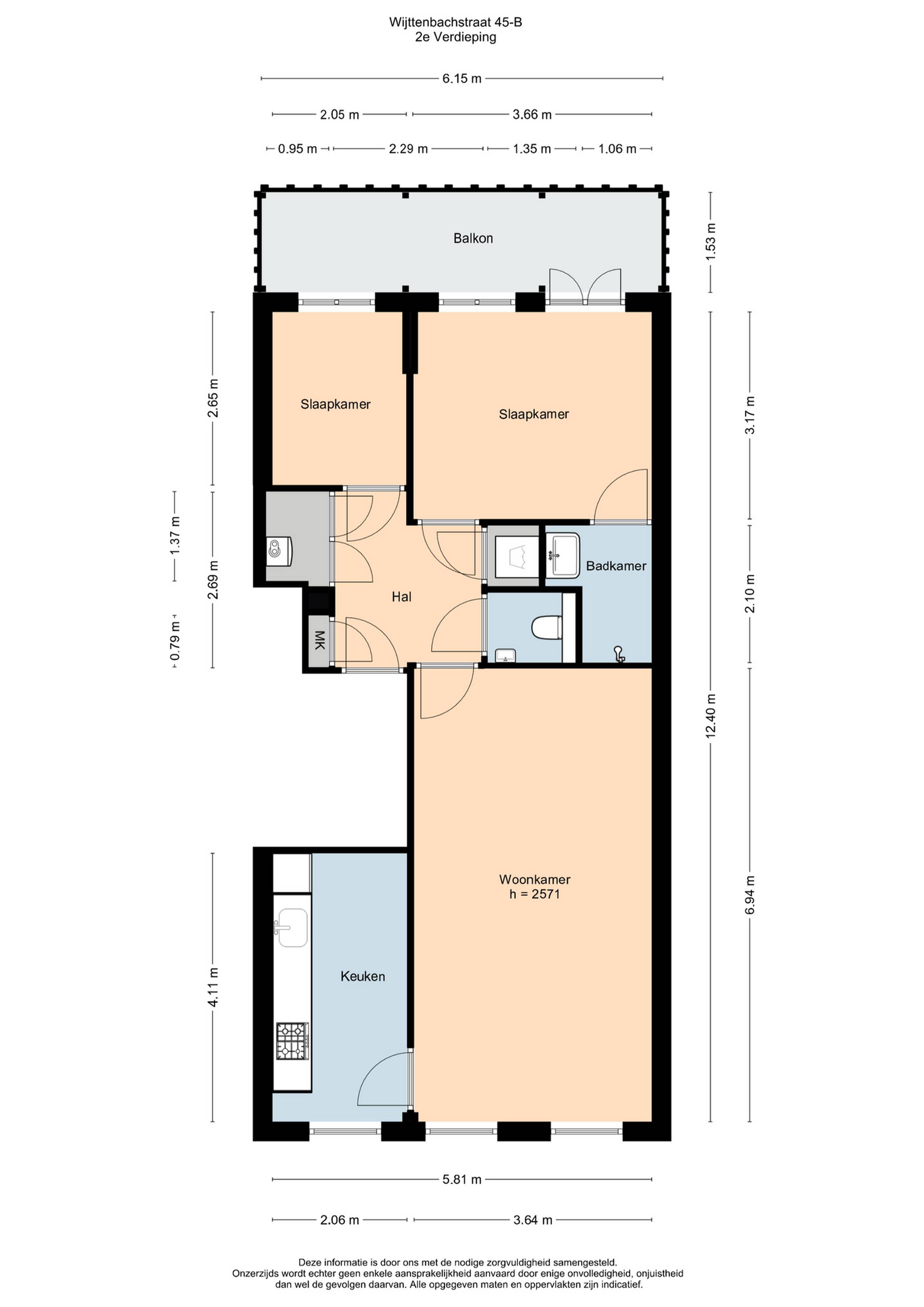
Bij binnenkomst betreedt u de ruime hal, het centrale middelpunt van het appartement. Vanuit hier heeft u aan de rechterzijde toegang tot de lichte woonkamer en de keuken. Aan de linkerzijde bevinden zich twee goed bemeten slaapkamers en het balkon. Tevens bereikt u vanuit de hal het separate toilet, de praktische wasruimte, de stookruimte en de meterkast.
De woonkamer is gunstig gelegen op het zuid-oosten en profiteert daardoor van een prettige, natuurlijke lichtinval gedurende de ochtend. De keuken is momenteel separaat uitgevoerd en voorzien van alle benodigde inbouwapparatuur. In het complex zijn echter meerdere appartementen waar deze ruimte is betrokken bij de woonkamer, waardoor een open leefkeuken is gerealiseerd. Ter illustratie is bij de foto’s een optionele plattegrond toegevoegd.
Beide slaapkamers beschikken ook over grote raampartijen, wat zorgt voor veel daglicht en een ruimtelijk gevoel. Vanuit de grote slaapkamer heeft u direct toegang tot het heerlijke, ruime balkon: een fijne plek om te ontspannen na een werkdag of te genieten van de avondzon bij een drankje of hapje. De badkamer, voorzien van een douche en wastafel, is eveneens bereikbaar via de hoofdslaapkamer.
Locatie
De Wijttenbachstraat ligt in de levendige en populaire Dapperbuurt in Amsterdam-Oost, op een toplocatie nabij het Oosterpark en het centrum. In de directe omgeving vindt u een breed aanbod aan winkels, supermarkten, gezellige cafés, restaurants en de bekende Dappermarkt. Ook hotspots zoals Artis, het Wereldmuseum, Brouwerij ’t IJ, De Kas en winkelcentrum Oostpoort liggen op korte afstand.
Voor ontspanning en recreatie is het Oosterpark praktisch om de hoek, met volop ruimte om te sporten, wandelen of genieten van het groen. Het centrum van Amsterdam bereikt u binnen 10 minuten fietsen. De bereikbaarheid is uitstekend met een tramhalte in de straat, het Muiderpoortstation op vier minuten loopafstand en een snelle aansluiting op de Ring A10 via de S113. Een ideale locatie om optimaal te genieten van het stadse leven.
Bijzonderheden
- Energielabel A+
- Bouwjaar: 1886 (renovatie 2014/2015)
- Woonoppervlakte: ca. 65 m² (NEN 2580 meetrapport aanwezig)
- Comfort van nu in de stijl van toen!
- Actieve en gezonde VvE
- Servicekosten: € 132,-
- Leuke buurt
- Erfpacht: huidig tijdvak afgekocht tot 16-09-2063
- Oplevering in overleg
Waarom je dit niet wilt missen
Een heerlijke instapklare woning als deze komt niet vaak op de markt. Ruim, karaktervol en gelegen op een toplocatie in Amsterdam-Oost – dit is jouw kans om een droomplek te bemachtigen.
Plan vandaag nog een bezichtiging en laat je verrassen door alles wat dit bijzondere huis te bieden heeft!
Deze woning wordt aangeboden conform art. 7:17 lid 6 Burgerlijk Wetboek. De opgegeven kenmerken en/of informatie zijn door ons met de nodige zorgvuldigheid samengesteld. Onzerzijds wordt echter geen enkele aansprakelijkheid aanvaard voor enige onvolledigheid, onjuistheid of anderszins, dan wel de gevolgen daarvan. Alle opgegeven maten en oppervlakten zijn slechts indicatief. De opgegeven kenmerken zijn slechts als aanduiding bedoeld. De NEN 2580-clausule is van toepassing bij deze woning.
Wijttenbachstraat 45B – Beautiful Apartment in Neo-Renaissance Style with Modern Comfort!
Characteristic building from 1886, fully renovated to modern construction standards, including a new foundation, new floor in the basement, new roof, sound and thermal insulation, and energy label A+. The typical Amsterdam façade ornaments have also been reconstructed. This unique, move-in-ready home stands out from standard apartments in Amsterdam due to its rare combination of history, quality, and modern living comfort in a prime location in Amsterdam-East.
Layout
Upon entering, you step into the spacious hall, the central hub of the apartment. To the right, you have access to the bright living room and kitchen. On the left, there are two generously sized bedrooms and the balcony. From the hall, you also reach the separate toilet, practical laundry room, boiler room, and meter cupboard.
The living room faces southeast, benefiting from pleasant natural light during the morning. The kitchen is currently separate and equipped with all necessary built-in appliances. In several other apartments in the complex, this space has been integrated into the living room to create an open-plan kitchen. An optional floor plan is included in the photos for illustration.
Both bedrooms feature large windows, providing abundant daylight and a sense of space. From the master bedroom, you have direct access to the generous balcony — a perfect spot to relax after work or enjoy the evening sun with a drink or snack. The bathroom, fitted with a shower and washbasin, is also accessible from the master bedroom.
Location
Wijttenbachstraat is situated in the lively and popular Dapperbuurt in Amsterdam-East, in a prime location near Oosterpark and the city center. The immediate area offers a wide range of shops, supermarkets, cozy cafés, restaurants, and the famous Dappermarkt. Popular hotspots such as Artis, the Wereldmuseum, Brouwerij ’t IJ, De Kas, and shopping center Oostpoort are all within close distance.
For relaxation and recreation, Oosterpark is just around the corner, providing plenty of space for sports, walking, or enjoying greenery. The city center is reachable within a 10-minute bike ride. Accessibility is excellent, with a tram stop on the street, Muiderpoort station just a four-minute walk, and quick access to the A10 ring road via the S113. An ideal location to enjoy urban living to the fullest.
Particulars
- Energy label: A+
- Year of construction: 1886 (renovation 2014/2015)
- Living area: approx. 65 m² (NEN 2580 measurement report available)
- Modern comfort in a historic style
- Active and healthy VvE (Homeowners’ Association)
- Service costs: €132 per month
- Lovely neighborhood
- Leasehold: current period bought off until 16-09-2063
- Delivery: in consultation
Why You Shouldn’t Miss This
A move-in-ready home like this rarely comes on the market. Spacious, full of character, and located in a prime area of Amsterdam-East — this is your chance to secure a dream home. Book a viewing today and be amazed by everything this exceptional property has to offer!
This property is offered in accordance with Article 7:17 paragraph 6 of the Dutch Civil Code. The features and/or information provided have been compiled with due care. However, no liability is accepted for any incompleteness, inaccuracies, or consequences thereof. All stated dimensions and surfaces are indicative. The given features are intended for reference purposes only. The NEN 2580 clause applies to this property.