English text below
Hudsonstraat 107-2 – Heerlijk startersappartement in Amsterdamse School-bouwstijl in de hippe wijk De Baarsjes!
Karakteristiek pand uit 1924, onlangs grondig aangepakt door de VvE! Ben jij klaar om jouw ideale thuis werkelijkheid te maken? Dan hebben we goed nieuws! Gelegen nabij parken, winkels, cafés en openbaar vervoer, biedt dit appartement een ideale kans om je eigen thuis te creëren in een levendige en goed bereikbare buurt. Kom snel kijken!
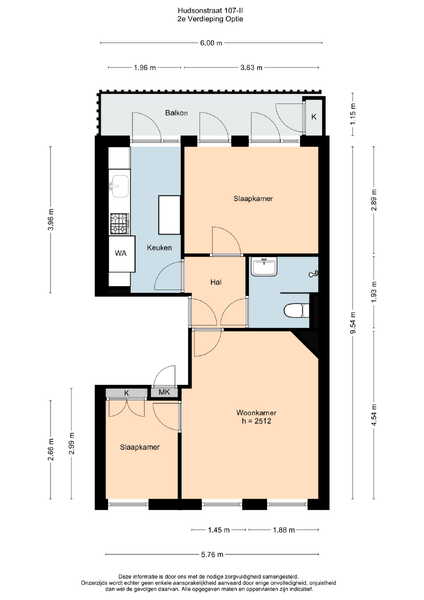
Indeling
Het appartement is gelegen op de tweede verdieping en is praktisch ingedeeld. Via de hal heb je toegang tot alle ruimtes. De lichte woonkamer met eikenhouten vloer heeft grote ramen die zorgen voor een prettige, open sfeer. De keuken grenst direct aan het balkon en is een topplek voor je ochtendkoffie of om lekker van de zon te genieten. De keuken is voorzien van alle benodigde apparatuur, waaronder een kokendwaterkraan.
De ruime slaapkamer geeft ook toegang tot het balkon, dat op het westen ligt. Ideaal om na werk te genieten van de avondzon. De badkamer is voorzien van een ruime inloopdouche, wastafel en toilet.
Het appartement is momenteel uitgevoerd als een 1-slaapkamerappartement. In het complex zijn echter meerdere appartementen waarbij de huidige eetkamer is omgezet tot een tweede slaapkamer of werkruimte. Ter illustratie is bij de foto’s een optionele plattegrond toegevoegd.
Locatie
Het appartement ligt in de populaire wijk De Baarsjes, aan de rustige en brede Hudsonstraat, tussen de Postjesweg, Hoofdweg en het Mercatorplein. De levendige buurt is de afgelopen jaren sterk in opkomst en biedt volop cafés, koffietentjes, restaurants en een bibliotheek.
Parkeren? Geen stress! Er is bijna altijd plek voor de deur en er zijn volop laadpalen in de straat en de omgeving. Met het Rembrandtpark op loopafstand en het Vondelpark op 5 minuten fietsen zit je hier perfect. Ook het openbaar vervoer en de uitvalswegen (A4, A10, E22) zijn binnen no time bereikbaar.
VvE
De woning maakt deel uit van een actieve en financieel gezonde VvE. De servicekosten bedragen € 195,- per maand. Het pand verkeert in goede staat. Onlangs heeft de VvE achterstallig onderhoud aangepakt. Ook is het bestuur actief bezig om de VvE klaar te maken voor de toekomst.
Eigendomssituatie
Het betreft een eeuwigdurend recht van erfpacht, eigendom van de gemeente Amsterdam. De Algemene Bepalingen 2000 zijn van toepassing. De jaarlijkse canon is langdurig afgekocht en bij vooruitbetaling voldaan tot en met 31-07-2061.
Bijzonderheden
• Bouwjaar: 1924
• Amsterdamse School
• Energielabel D
• Woonoppervlakte: ca. 49 m² (NEN 2580 meetrapport aanwezig)
• Actieve en gezonde VvE
• Servicekosten: € 195,-
• Erfpacht: huidig tijdvak afgekocht tot 31-07-2061
• Oplevering in overleg
Waarom je dit niet wilt missen
Een heerlijke ruime, karaktervolle woning gelegen op een leuke locatie in Amsterdam.
Plan vandaag nog een bezichtiging in!
Deze woning wordt aangeboden conform art. 7:17 lid 6 Burgerlijk Wetboek. De opgegeven kenmerken en/of informatie zijn door ons met de nodige zorgvuldigheid samengesteld. Onzerzijds wordt echter geen enkele aansprakelijkheid aanvaard voor enige onvolledigheid, onjuistheid of anderszins, noch voor de gevolgen daarvan. Alle opgegeven maten en oppervlakten zijn slechts indicatief. De opgegeven kenmerken zijn slechts als aanduiding bedoeld. De NEN 2580-clausule en ouderdomsclausule zijn van toepassing bij deze woning.
English text below
Hudsonstraat 107-2 – Charming starter apartment in Amsterdam School style in the trendy “De Baarsjes” neighborhood!
Characteristic building from 1924, recently thoroughly maintained by the Homeowners’ Association (VvE)! Are you ready to turn your ideal home into reality? Then we have good news! Located close to parks, shops, cafés, and public transport, this apartment offers a perfect opportunity to create your own home in a lively and well-connected neighborhood. Come and see it for yourself!
Layout
The apartment is located on the second floor and is practically laid out. Through the hallway, you have access to all rooms. The bright living room with oak wooden flooring features large windows that create a pleasant, open atmosphere. The kitchen is directly connected to the balcony and is a perfect spot for your morning coffee or to enjoy the sun. The kitchen is equipped with all necessary appliances, including a boiling water tap.
The spacious bedroom also provides access to the west-facing balcony — ideal for enjoying the evening sun after work. The bathroom features a generous walk-in shower, washbasin, and toilet.
The apartment is currently configured as a one-bedroom apartment. However, in the complex there are several apartments where this space has been converted into a bedroom. For illustration purposes, an optional floor plan has been added to the photos.
Location
The apartment is located in the popular De Baarsjes district, on the quiet and wide Hudsonstraat, between Postjesweg, Hoofdweg, and Mercatorplein. This lively neighborhood has grown rapidly in recent years and offers plenty of cafés, coffee spots, restaurants, and a library.
Parking? No worries! There is almost always space in front of the building, and plenty of charging stations are available in the street and surrounding area. With Rembrandtpark within walking distance and Vondelpark just a 5-minute bike ride away, this location is ideal. Public transport and major roads (A4, A10, E22) are easily accessible.
Homeowners’ Association (VvE)
The property is part of an active and financially healthy VvE. The service charges are €195 per month. The building is in good condition. Recently, the VvE addressed deferred maintenance, and the board is actively preparing the association for the future.
Ownership Situation
The property is on perpetual leasehold owned by the Municipality of Amsterdam. The General Provisions 2000 apply. The annual ground rent has been bought off long-term and prepaid until 31-07-2061.
Key Features
• Year of construction: 1924
• Amsterdam School architectural style
• Energy label D
• Living area: approx. 49 m² (NEN 2580 measurement report available)
• Active and financially healthy Homeowners’ Association
• VvE: €195 per month
• Leasehold paid off until 31-07-2061
• Delivery in consultation
Why you don’t want to miss this
A wonderful home, full of character, and located in nice area of Amsterdam. Schedule a viewing today!
This property is offered in accordance with Article 7:17 paragraph 6 of the Dutch Civil Code. The stated characteristics and/or information have been compiled with due care. However, we accept no liability for any inaccuracies, incompleteness, or otherwise, nor for the consequences thereof. All stated measurements and surface areas are indicative only. The stated characteristics are intended as an indication only. The NEN 2580 clause and age clause apply to this property.