Licht appartement met vrij uitzicht en 2 slaapkamers in Amsterdam Oost!
Wonen aan een groen plantsoen én midden in het bruisende Amsterdam-Oost? Dit lichte appartement aan het President Steynplantsoen 11-2 is precies wat je zoekt als starter, jong gezin of stadsliefhebber. Met een slimme indeling, vrij uitzicht en alle hotspots om de hoek, is dit zo’n plek waar je je meteen thuis voelt.
**English text below**
HIGHLIGHTS VAN DE WONING
•Energielabel C
• De gehele woning beschikt over dubbele beglazing
•Bouwjaar: 1928
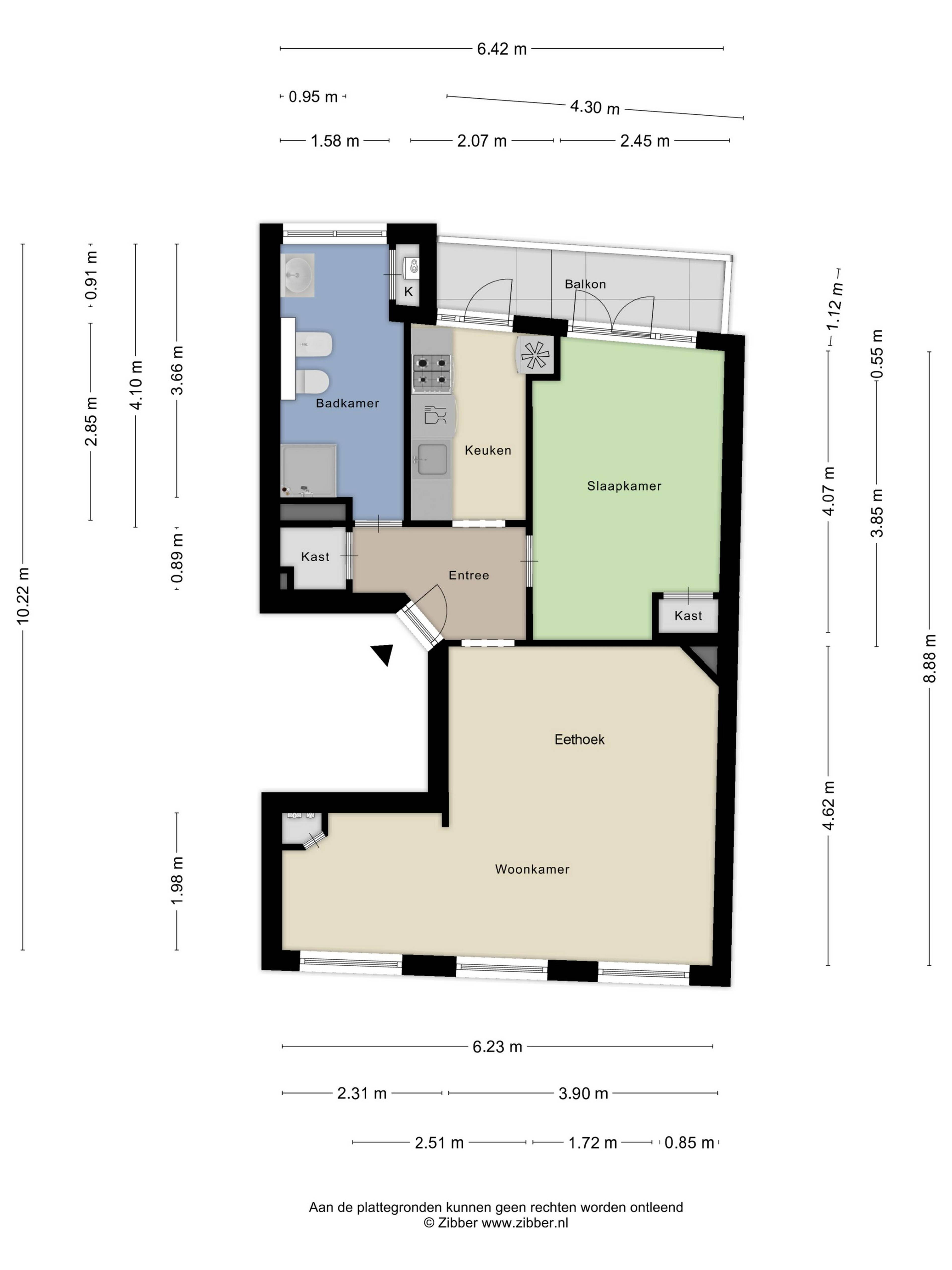
•Woonoppervlakte: ca. 52 m² (NEN 2580 meetrapport aanwezig)
•Licht 1 slaapkamer appartement met optie tot creëren 2e slaapkamer!
•Actieve en gezonde VvE
•Servicekosten: €100,75 euro per maand
•In het bruisende Transvaalbuurt
•Erfpacht € 335,43 per jaar – einde tijdvak 31 december 2051 – AB2000 met jaarlijkse indexering.
•Oplevering in overleg
WONEN MET KARAKTER EN COMFORT
Zodra je binnenstapt, merk je het meteen: dit appartement voelt logisch, licht en comfortabel. De hal fungeert als het hart van de woning en geeft toegang tot alle ruimtes. Geen verloren ruimte, alles klopt gewoon. De woonkamer is een fijne plek om tot rust te komen na een lange dag, met genoeg ruimte voor een gezellige zithoek én een eettafel waar je met vrienden of familie uren blijft hangen.
Het vrije uitzicht is hier echt een pluspunt. Geen overburen die naar binnen kijken, maar juist een open gevoel dat rust brengt in de stadse dynamiek. De slaapkamer is ruim en praktisch ingericht, en als je behoefte hebt aan extra ruimte, dan is een tweede slaapkamer verrassend eenvoudig te realiseren.
De woning is netjes onderhouden en beschikt over energielabel C, wat zorgt voor een goede balans tussen comfort en verbruik. Daarbij is de VvE actief en betrokken, wat zorgt voor een prettige en stabiele woonomgeving.
En dan de sfeer… ’s ochtends wakker worden met het geluid van vogels uit de binnentuin, een koffietje bij de hand, en weten dat alles wat je nodig hebt zich letterlijk om de hoek bevindt. Dat is wonen hier.
LOCATIE & BEREIKBAARHEID
De ligging is echt spot-on. Je woont hier in de geliefde Transvaalbuurt, op steenworp afstand van het levendige Beukenplein en de Wibautstraat. Of je nu zin hebt in een goede koffie, een uitgebreid diner of een snelle boodschap, alles ligt binnen handbereik.
Qua bereikbaarheid zit je hier ook helemaal goed. Je hebt het Amstelstation op loopafstand, perfect voor trein, metro en busverbindingen. Binnen een paar minuten zit je op de Ring A10, ideaal als je de stad uit moet. Het centrum van Amsterdam, de pijp en het Oosterpark bereik je eenvoudig met de fiets.
KOM KIJKEN EN VOEL HET ZELF
Dit is zo’n appartement dat je moet ervaren. De combinatie van licht, rust, locatie en mogelijkheden maakt dit een unieke kans op de Amsterdamse woningmarkt. Zie jij jezelf hier al wonen? Wacht niet te lang en plan snel een bezichtiging, dit zou zomaar jouw nieuwe thuis kunnen zijn!
Disclaimer: Aan de inhoud van deze tekst, de verstrekte informatie en de presentatie van dit object kunnen geen rechten worden ontleend. Hoewel deze advertentie met de grootst mogelijke zorgvuldigheid is samengesteld, kunnen eventuele onjuistheden, onvolledigheden of wijzigingen niet worden uitgesloten. Makelaars van Amsterdam aanvaardt geen aansprakelijkheid voor schade voortvloeiend uit het gebruik van deze informatie.
---------------------------------------------------------------------------------
Bright 2-bedroom Apartment with Open Views in Amsterdam East!
Looking to live by a green park while staying in the heart of vibrant Amsterdam East? This bright apartment at President Steynplantsoen 11-2 is ideal for first-time buyers, young families, or anyone who enjoys city living. With a smart layout, open views, and all amenities just around the corner, this is a place you’ll instantly feel at home.
KEY FEATURES
•Energy label C
• The entire property is equipped with double glazing
•Built in 1928
•Living area approx. 52 m² (NEN 2580 measurement report available)
•Bright 1-bedroom apartment with option for a 2nd bedroom!
•Active and financially healthy homeowners’ association (VvE)
•Service charges: €100,75 euro's per month
•Located in the lively Transvaalbuurt
•Leasehold: €335.43 per year – end of term December 31, 2051 – AB2000 with annual indexation.
•Delivery in consultation
LIVING WITH CHARACTER AND COMFORT
As soon as you step inside, you’ll notice it right away: this apartment feels bright, practical, and comfortable. The central hallway connects all rooms efficiently, ensuring no wasted space.
The living room offers a welcoming space to relax after a long day, with enough room for both a comfortable seating area and a dining table where you can enjoy long evenings with friends or family.
One of the standout features is the unobstructed view. With no direct neighbors overlooking the apartment, you’ll enjoy a sense of openness and privacy that’s rare in the city. The bedroom is spacious and well laid out, and if you need extra space, creating a second bedroom is surprisingly easy.
The apartment is well maintained and features an energy label C, offering a good balance between comfort and efficiency. The active and engaged homeowners’ association contributes to a stable and pleasant living environment.
And then there’s the atmosphere… waking up to the gentle hum of the birds from the middle garden, coffee in hand, knowing everything you need is just around the corner, this is city living at its best.
LOCATION & ACCESSIBILITY
The location is truly excellent. Situated in the popular Transvaalbuurt, you are just around the corner from Beukenplein and Wibautstraat, known for their wide range of cafés, restaurants, and shops.
Accessibility is outstanding. The Amstelstation is in walking distance, offering excellent train, metro, and bus connections. The A10 ring road can be reached within minutes, making it easy to leave the city. Amsterdam’s city center, de Pijp and het Oosterpark is just a short bike ride away.
SCHEDULE A VIEWING
This is a home you need to experience in person. The combination of light, location, tranquility, and potential makes this a unique opportunity in the Amsterdam housing market.
Can you already picture yourself living here? Don’t wait too long, schedule a viewing today. This could be your new home!
Disclaimer: No rights can be derived from the content of this text, the information provided or the presentation of this property. Although this advertisement has been compiled with the utmost care, inaccuracies, omissions or changes cannot be excluded. Makelaars van Amsterdam accepts no liability for any damage resulting from the use of this information.