Information
Description
English below
Bent u op zoek naar een authentiek jaren '20 appartement, gelegen op de begane grond én met een riante, zonnige tuin van ca. 97 m2? Dan is dit appartement precies wat u zoekt!
Gelegen in de ‘Rivierenbuurt’ treft u dit aangename, lichte appartement aan. Het gaat om een fijn appartement met saillante details als paneeldeuren, mooie houten vloeren, hoge plafonds en een open haard in de woonkamer. De fraaie, grote en suite woonkamer geeft met twee openslaande deuren toegang tot de opvallend grote achtertuin. Hier heeft u bijzonder veel buitenruimte met optie tot relaxen en tuinieren. De complete keuken staat op haar beurt ook in open contact met de achtertuin via twee deuren.
Het appartement staat in het leukste en groene gedeelte van de Waalstraat tussen de Churchill-laan en de Amstelkade aan een rustig plein met oude kastanjebomen en men kan gemakkelijk in de buurt parkeren met een vergunning .
De wijk kenmerkt zich door zijn zeer gunstige ligging en de karakteristieke jaren ’20 bruggen en gevels van de beroemde ‘Amsterdamse school’ architectuur. Het Martin Luther Kingpark, de Amstel en het Beatrixpark zijn ieder op loopafstand en nodigen uit tot mooie wandelingen, sporten en picknicken.
Bij de Amstelkade heeft U een goede opstapplaats voor het suppen of om met een sloepje de gracht op te gaan en U bent snel op de Amstel.
Het bruisende centrum van Amsterdam is ook slechts op 10 minuten fietsafstand. Voor echte gezelligheid hoeft u het niet eens zo ver te zoeken en kunt u terecht bij de talloze horecagelegenheden en winkels die de Rivierenbuurt en de Pijp u te bieden hebben. De woning is bovendien uitstekend bereikbaar via het openbaar vervoer met zowel het Amstel-station en Station RAI op nog geen 5 minuten fietsen. De uitvalswegen richting de A10 en de A2 zijn eveneens eenvoudig te bereiken, waardoor Schiphol en de Zuidas eenvoudig en snel te bereiken zijn.
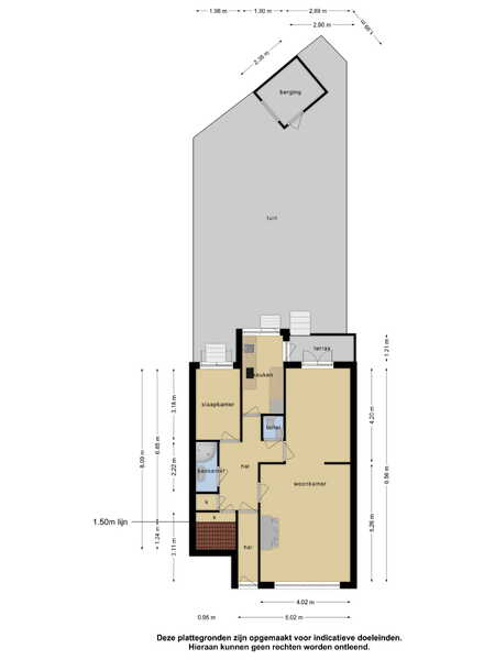
Indeling van de woning:
Bij het betreden van het appartement vallen direct de hoge plafonds en de paneeldeuren met vlakverdeling op. Via de fraaie entree bereikt u via de centrale hal de keuken, de badkamer, de slaapkamer en de woonkamer. De woning zou eventueel uitgebreid kunnen worden met een tweede slaapkamer bij de en suite woonkamer.
De verhoogde doorzonwoonkamer ontvangt veel natuurlijk licht aan weerszijde dankzij de grote raampartijen en openslaande deuren naar de tuin. Met de mooie houten vloer en de openhaard is het hier goed vertoeven.
De slaapkamer beschikt over voldoende ruimte voor een tweepersoonsbed en geeft vrij uitzicht over uw groene tuin en heeft 2 grote patio deuren die direct toegang tot de tuin geven. De compacte badkamer is compleet en voorzien van een wasbak in meubel en een ruime inloopdouche. Verder is de keuken praktisch ingedeeld en voorzien van veel kastjes, een afzuigkap, een 4-pits gaskookplaat, afwasmachine, een combimagnetron en een koel/vries combinatie. Het geheel betegelde toilet is voorzien van een moderne wc-fonteintje. In de hal bevind zich ook nog een ingebouwde kast en een gangkast, waar een wasmachine en andere grotere items geplaatst kunnen worden.
Exterieur:
De tuin is 97m2 met veel ruimte voor loungen en eten en waar u kunt de gehele middag en avond genieten van de zon; de tuin is gelegen op het noordwesten.
De achtertuin is volledig betegeld op een border aan de zijkant na. Hierdoor wisselen het terras en speelse begroeiing zich harmonieus af en de tuin heeft relatief veel privacy door de strategisch geplaatste bomen en planten in de border. Achterin de tuin staat nog een vrijstaand schuurtje voor de opslag van gereedschap en tuin spullen.
De achtertuin is via zowel de slaapkamer, als de keuken en de woonkamer bereikbaar. Vanaf het verhoogde en overdekte balkon kunt u ten alle tijden heerlijk genieten van de buitenlucht en heeft U uitzicht over uw diepe achtertuin.
Dit appartement is eventueel uit te bouwen en/of men kan een tuinhuis te plaatsen in deze grote tuin.
Omgeving:
Op loopafstand vindt u de gezellige Maasstraat en de Scheldestraat met hun talloze winkels voor de dagelijkse boodschappen, leuke kroegjes en restaurantjes. De Albert Cuypmarkt met meer leuke andere authentieke winkeltjes en restaurants is op 10 min loopafstand.
Het appartement is zeer strategisch gelegen ten opzichte van Schiphol, de Zuid-as, Amstel station / Station Rai en de binnenstad van Amsterdam Ook met de auto bent u binnen ca.10 minuten op Schiphol.
De tram/bus Waalstraat is slechts op paar minuten te voet bereikbaar in Churchill-laan en de halte Rijnstraat/Amstelkade op ca. 8-10 min met zeer goede connecties met trams 4 & 12, bus 62 of 65 en nu ook de Noord-Zuid lijn van de metro. Met de fiets sta je in ca. 10 min op de Dam of op PC Hooftstraat / concertgebouw buurt of het Vondelpark.
Amstelpark en Beatrix park zijn te voet bereikbaar op korte afstand, maar er zijn ook vele andere sport-faciliteiten als het Miranda zwembad, diverse fitness centra op Europaplein of in de Pijp en je kan roeien of suppen bij de Amstelkade of op de Amstel.
Parkeren kan zonder problemen rondom pleintje bij het appartement met een parkeervergunning.
Kortom een ideaal en leuk plek in de Rivierenbuurt voor jong en oud; voor iedereen die van een tuin houdt en/of watersporten wil beoefenen op een van de grachten in de buurt.
Bijzonderheden:
-Karakteristiek licht jaren ’20 appartement
-Diepe en zonnige achtertuin met groot terras.
-Complete keuken en badkamer
-Paneeldeuren en houten vloer
-grote En-suite woonkamer
-Schuur in de tuin
-Gelegen in de populaire ‘Rivierenbuurt’, naast Amstelkade en de Pijp
-Op 10 minuten fietsafstand van het centrum van Amsterdam
- Vlakbij Albert Cuypmarkt, Amstelpark, Beatrixpark
-veel opties voor openbaar vervoer (tram, bus, trein en metro)
- ruimte in tuin om apartment uit te breiden of om tuinhuis te plaatsen
-Servicekosten: €140,- per maand, vanaf 2023 €142,50
-Erfpacht is €755 per jaar, 5 jaar indexering vast tot November 2048. Nieuwe aanvraag voor afkoop erfpacht is in February 2022 gedaan, maar er is voor Januari 2020 ook al een aanvraag gedaan onder het oude regime. Daardoor mag U gebruik maken van de spijtoptanten regeling, die momenteel door de gemeente Amsterdam uitgewerkt wordt, maar de details zijn nog niet bekend.
English
Are you looking for an authentic , bright 1920's apartment with a very spacious, sunny garden of approximately 97 m2? Then this apartment is exactly what you are looking for!
Located in the trendy and green part of the 'Rivierenbuurt' you will find this pleasant apartment. It is a nice and bright apartment with salient details such as panel doors, beautiful wooden floors, high ceilings and a fireplace in the large living room (dining and sitting area). This beautiful en-suite living room gives access to the remarkably large garden with 2 large patio doors. Here you have a lot of outdoor space with the option to relax and garden. The complete kitchen is in turn also in open contact with the garden.
The apartment is located in the nice and green part of the Waalstraat between the Churchill-laan and the Amstelkade on a quiet square with old chestnut trees and many parking options. The Rivierenbuurt is characterized by its very favorable location and the characteristic 1920s bridges and facades of the famous Amsterdam school architecture.
The Martin Luther Kingpark, the Amstel and the Beatrixpark are all within walking distance and invite you to beautiful walks, exercise and picnics. From the Amstelkade you have a good starting point for supping or to discover the canals by boat and you are quickly on the Amstel river.
The bustling center of Amsterdam is also only a 10-minute bike ride away. For real fun you don't even have to look that far and you can visit the many trendy restaurants and shops that the Rivierenbuurt and De Pijp have to offer.
The apartment is also easily accessible by public transport with both the Amstel station and Rai Station less than 5 minutes by bike. The roads to the A10 and A2 are also easily accessible, making Schiphol airport and the Zuid-as business district easy and quick to reach.
Layout of the apartment:
When entering the apartment you will immediately notice the high ceilings and panelled doors with flat panels. Through the beautiful entrance you reach the central hallway which gives access to the kitchen, the bathroom, the bedroom and the large en-suite living room (with dining and sitting areas).
The 2 room en-suite receives lots of natural light on either side due to the large windows or the 2 patio doors. With the beautiful wooden floor and fireplace, this is a good place to be and entertain guests. The house could possibly be expanded with a second bedroom in the en suite living room.
The bedroom has enough space for a double bed and gives an unobstructed view of your green garden and has 2 patio doors which give direct access to the garden.
The compact bathroom is complete and equipped with a sink and a spacious shower. Furthermore, the kitchen is practically equipped with plenty of cabinets, an extractor hood, a 4-burner gas hob, dishwasher, a microwave and a fridge / freezer. The fully tiled toilet has a contemporary toilet basin.
In the central hallway there is built-in wardrobe and built-in cupboard where a washing machine and other larger items can be stored.
Exterior:
The garden is 97m2 with plenty of space for lounging and dining and you can enjoy the sun all afternoon and evening; the garden is located on the northwest.
The garden is fully tiled except for a border on the side. As a result, the terrace and playful vegetation alternate harmoniously and the garden has a lot of privacy due to the strategically placed trees and plants in the border. At the back of the garden is a detached shed for the storage of garden tools and - equipment.
The garden is accessible via the bedroom, the kitchen and the en-suite living room. From the covered balcony you can enjoy the outdoors at all times and you have a good view over your terrace and garden. This apartment could also be expanded and /or you can place a larger garden house due to this large spacious garden.
Neighbourhood:
Within walking distance you will find the cozy Maasstraat and Scheldestraat with a good variety of shops for groceries, nice bars and many restaurants. The Albert Cuyp market with more authentic shops and restaurants is only a 10-minute walk away.
The apartment is very strategically located in relation to Schiphol, the Zuidas business district, Amstel station / Station Rai and the buzzing city center of Amsterdam. You can reach Schiphol within about 10 minutes by car.
The tram/bus Waalstraat is only a few minutes away on foot in Churchill-laan and the Rijnstraat/Amstelkade stop is approx. 8-10 min. with very good connections in all directions with trams 4 & 12, bus 62 or 65 and now also the new metro Noord- South line. You can reach Dam Square or the PC Hooftstraat or Vondelpark in about 10 minutes by bike.
Amstelpark and Beatrix Park can be reached on foot at a short distance, but there are also many other sports facilities like the Miranda swimming pool, various fitness centers on Europa-plein or in De Pijp and you can row or paddle at the Amstelkade canal or on the Amstel river.
Parking is possible without any problems around the square or near the apartment with a parking permit.
In short, an ideal and fun spot in the Rivierenbuurt for young and old; for anyone who enjoys a garden, and/or wants to practice water sports on one of the canals closeby.
Summary / Highlights:
- Characteristic, bright ’1920 apartment
- Deep and sunny garden (97m2) with large terrace
- Complete kitchen and bathroom
- large En suite living room
- Panelled doors and wooden flooring
- Easy parking around square
- Located in the trendy 'Rivierenbuurt , next to the Pijp and Amstelkade
- 10 minutes by bike from the city center of Amsterdam
- easy access to public transport (tram, train, bus and metro)
- Close to Zuid-As business district and Schiphol airport
- space to expand the apartment and/or for larger garden house
- Service costs: €140,- per month, from 2023 €142,50
- Ground lease: €755,- per year, 5 year indexing fixed until November 2048. A new application for the perpetual ground lease was made in February 2022, however, also an application had already been made before January 2020 under the old under the old, more beneficial conditions regime. The city of Amsterdam is developing a new offer for these citizens who did not accept first offer, but who did request conversion before January 2020 (spijtoptanten regeling); no details are known yet. More information on ground lease in Amsterdam can be found at https://www.amsterdam.nl/en/housing/ground-lease/
Specifications
Address
1078 BS Amsterdam
Price
Details
Layout
Garden
Garage
Bergruimte
Energy rating
Your estate agent
Filipe Bataglia
Interested in this property? We will gladly contact you. Fill in this form for a viewing of this property or for more information. We will contact you as soon as possible.













