Information
Description
Prachtige maisonnette gelegen nabij de ingang van het Amsterdamse bos in stadsdeel Buitenveldert. De woning telt 142m² (bruto 173m2), heeft een goede indeling, is in 2020 grotendeels gerenoveerd waarbij modern comfort gecombineerd is met behoud van authentieke eigenschappen, karakter en sfeer. De woning beschikt onder andere over een moderne open keuken, twee badkamers, 4-5 slaap/werk kamers en 31m² overig inpandige ruimte (sta hoogte c.a. 1,96m) met o.a. een in aanbouw zijnde sauna. Heerlijke achtertuin met voldoende zon en een oase van rust. Eeuwigdurende erfpacht is reeds geregeld.
INDELING
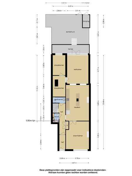
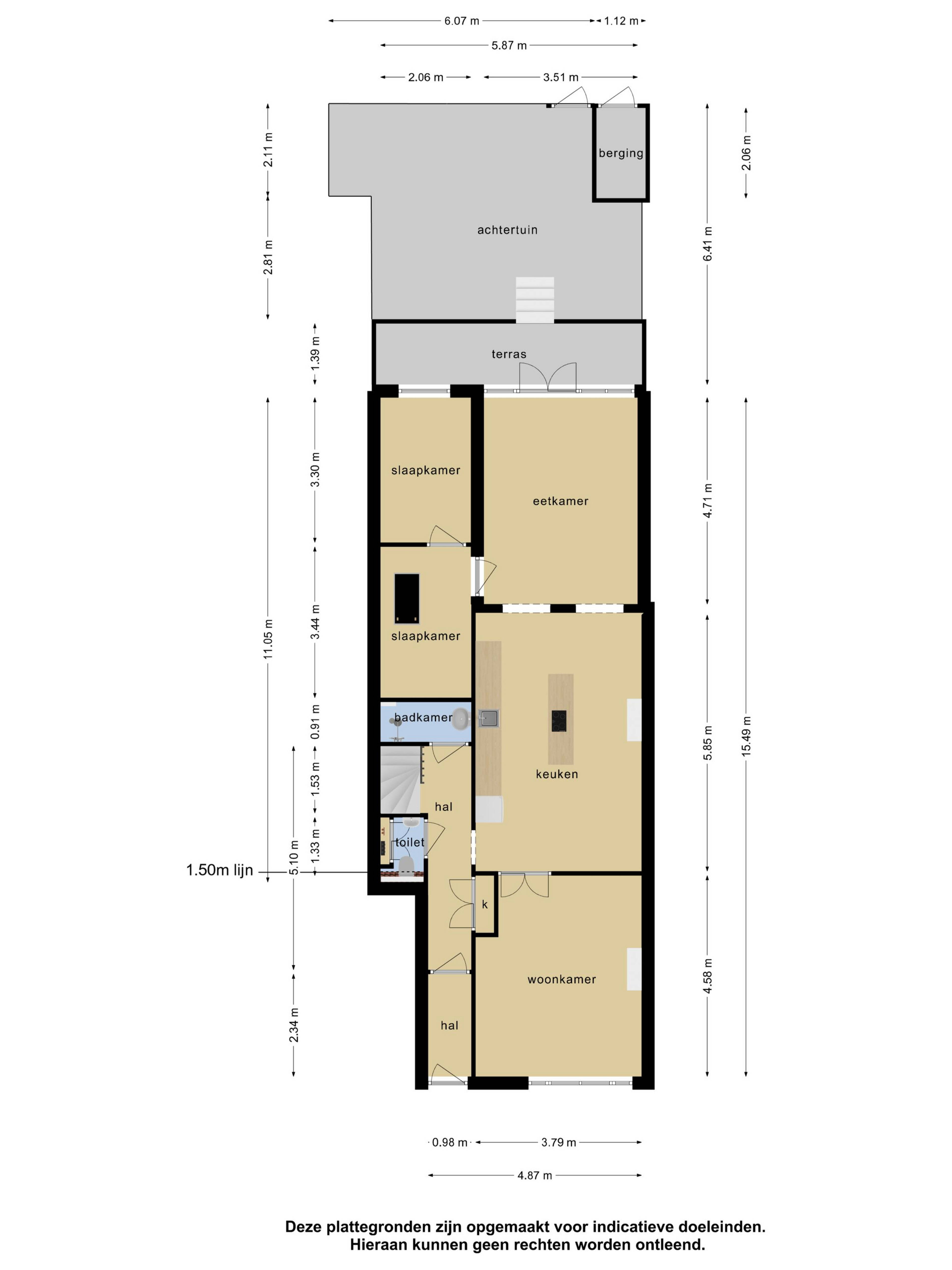
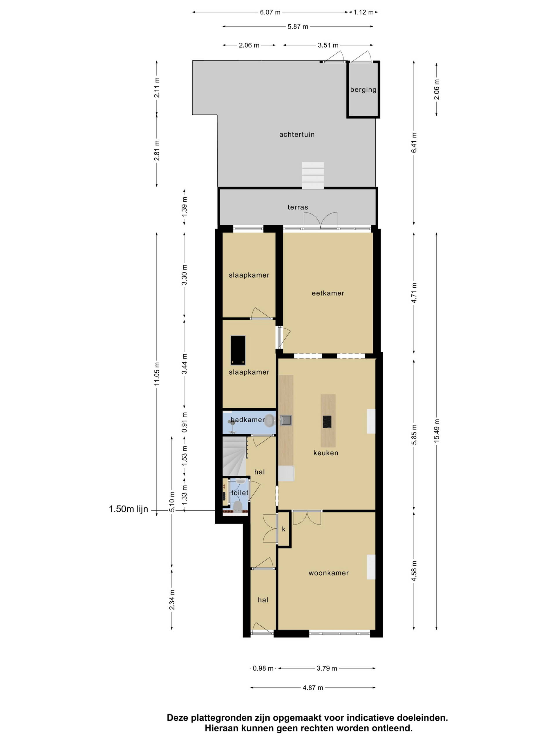
Begane grond
Bij binnenkomst in de hal loop je over de massief houten eiken vloer die toegang biedt tot de wc en de modern afgewerkte gastenbadkamer met grote stortdouche, wastafel en voorzien van vloerverwarming.
Vanuit de hal loop je de landelijk geïnspireerde Beda-woonkeuken met kookeiland in. Deze centraal gepositioneerde keuken is uitgerust met een 6-pits La Germania fornuis, multifunctionele oven, vol geïntegreerde vaatwasser, whirlpool eilandkap en een Quooker. De voorzijde is een gezellige warme zitkamer die, via eenvoudige ingreep, is om te zetten naar slaapkamer. De achterzijde doet dienst als eetkamer en heeft uitzicht op de achtertuin. Via de eetkamer is er toegang tot twee kamers. Deze kunnen dienen als gastvertrek of hobby/kantoorkamer. Grote glazen kamerhoge harmonicaschuifdeuren vormen de overgang van de eetkamer naar het terras. Van dit terras stap je de lagergelegen tuin in.
De tuin is voorzien buitendouche en een relaxte loungebank. In de schuur is volop bergruimte. De achtertuin is via een achterom bereikbaar.
SOUTERRAIN
Via de Frake houten trap loop je vanaf de hal het souterrain in. Deze is ingedeeld in twee verschillende hoogtes. Een deel met originele hoogte bestaande uit opbergruimte, sauna (in aanbouw) aan de voorzijde en slaap/werkkamer aan de achterzijde. In 2020 is de overige ruimte onder de woning uitgegraven en verbouwd tot twee zeer riante slaapkamers, badkamer en cv-ruimte. Hier heb je van koude voeten geen last gezien de visgraat pvc-vloer voorzien is van vloerverwarming.
De master bedroom heeft daglicht en natuurlijke ventilatie via raampartij. Het klassieke gietijzeren bad zorgt voor de nodige ontspanning
De slaapkamer aan de voorzijde heeft daglicht en ventilatie middels een koekoek.
Door het gebruik van de Phillips Hue lampen is er overal smartverlichting en de combinatie van hoge plafonds, kristallen spotjes en raampartijen krijg je een geweldige lichtval.
Tussen de slaapkamers in kan je genieten van de dubbele regendouche in de witmarmeren badkamer. Met genoeg stopcontact voorzieningen, een ruime wasbak en opbergmogelijkheid is het de ideale gezinsbadkamer.
Naast de badkamer is er nog een berging met aansluitpunten voor een wasmachine en droger. Hier bevinden zich ook de twee CV-ketels en broyeurpomp.
LIGGING
De Amstelveenseweg in Buitenveldert kenmerkt zich door dorpse sfeer in combinatie met de stadse voorzieningen. Het Amsterdamse bos is bij uitstek de plek voor sport en recreatie. Het bos biedt plaats aan diverse sportverenigingen (o.a. hockey, tennis, cricket) maar leent zich ook goed voor wandelingen, picknicken of zwemmen in de nieuwe meer. Winkelen doe je op het Gelderlandplein, het Amstelveense stadshart of in Amsterdam Zuid. Het vondelpark, concertgebouw en Cornelis Schuytstraat bereik je binnen het kwartier. Het internationale zakencentrum Zuidas is om de hoek, een levendige buurt met weekmarkten en restaurants. Verder meer van voldoende internationale scholen en kinderopvang.
Met het openbaar vervoer (div. tram- en busverbindingen) bent u in korte tijd de stad in en uit en met de auto is de Ringweg A10 en A2 binnen enkele autominuten bereikbaar.
BIJZONDERHEDEN
-Woonoppervlakte ca. 142m² (BVO 173m2)
-Overige inpandige ruimte van ca. 31m² (stahoogte ca. 196cm)
-4 -5 slaapkamers
-2 badkamers
-Terras en tuin gelegen op het zuid-oosten
-Philips Hue smartlampen
-Voldoende daglicht in slaapkamers souterrain
-Eeuwigdurend erfpacht notarieel vastgelegd onder gunstige voorwaarden (indexatie)
-Gezonde en Actieve VvE
-2 CV ketels: Intergas compact HRE CW-5
-Genoeg parkeergelegenheid
-Mogelijkheid tot twee parkeervergunningen
Het maken van een afspraak kan via ons kantoor of via een online agenda op onze website.
Bij jullie bezoek vertellen we graag meer over deze smaakvol verbouwde woning.
*ENGLISH*
Charming, modern and well laid-out duplex located near the entrance of the Amsterdam forest in Amsterdam Buitenveldert. This double floor apartment of 142m² (gross 173m2) was completely renovated in 2020 combining modern comfort with preservation of authentic features. The property includes a modern kitchen, two bathrooms, 4-5 bedrooms/studies and 31m² other indoor space (standing height is approx 1,96m) with a sauna under construction. Lovely backyard with plenty of sunshine and an oasis of tranquility. Eternity purchased leasehold is already arranged.
CLASSIFICATION
First floor
Upon entering the hall you walk on the solid oak wood floor which provides access to the toilet and the modern finished guest bathroom with large rain shower, sink and equipped with underfloor heating.
From the hall you walk into the country inspired Beda kitchen with island. This centrally positioned kitchen is equipped with a 6-burner La Germania stove, multifunction oven, fully integrated dishwasher, whirlpool island hood and a Quooker. The front is a cozy warm sitting room that, via simple modification, can be converted to bedroom. The rear serves as a cozy dining room and overlooks the backyard. Through the dining room there is access to two rooms. These can serve as guest rooms or hobby/office rooms. Large glass room-high harmonica sliding doors transition from the dining room to the terrace. From this terrace you step into the lower garden.
The garden has an outdoor shower and a relaxing sofa. In the shed there is plenty of storage space. The backyard is accessible via a back door.
SOUTERRAIN
Through the Frake wooden staircase you walk from the hall into the souterrain. This is divided into two different heights. A part with original height consisting of storage space, sauna (under construction) at the front and sleep / work room at the rear. In 2020, the remaining space under the house excavated and converted into two very spacious bedrooms, bathroom and boiler/utility room. Floorheating will keep the rooms comfortable on a steady temperature.
The master bedroom has natural light and natural ventilation through the windows. De classic, cast iron bath provides the necessary class and wellness.
The front bedroom has natural light and ventilation through a dormer window
Through the use of Phillips Hue lamps there is smart lighting throughout and the combination of high ceilings, crystal spotlights and windows you get a great light fall.
Between the bedrooms you can enjoy the double rain shower in the white marble bathroom. With plenty of electrical outlets, a spacious sink and storage, it's the ideal family bathroom.
Next to the bathroom there is a storage/utility room with connections for a washing machine and dryer. Here are also the two boilers and broyeur pump.
LOCATION
The Amstelveenseweg in Buitenveldert is characterized by cosy atmosphere combined with city attitude. The Amsterdam forest is the ideal place for sports and recreation. The forest is home to various sports clubs (including field hockey, tennis, cricket) but is also good for walks, picnics or swimming in "de nieuwe meer". Shopping can be done at Gelderlandplein, Amstelveen city center or in Amsterdam Zuid. The Vondelpark, concert hall and Cornelis Schuytstraat are within fifteen minutes' by bike. The international business center Zuidas is around the corner, a lively neighborhood with weekly fresh markets and restaurants. Butenvelderet is home to plenty international schools and childcare.
By public transport (various streetcar and bus connections) you can be in and out of the city in no time and by car, the A10 and A2 motorways are only a few minutes away.
DETAILS
- Living area approx. 142m² (GLA 173m2)
- Other indoor area of approx. 31m² (height app. 6 ft 5 inches)
- 4 -5 bedrooms
- 2 bathrooms
- Deck space and garden facing south-east
- Philips Hue smart lights
- Daylight in bedrooms basement
- Leasehold payed till 2058. Indexation from then onwards under favourable conditions
- Financially healthy and administratively active home-owners association
- 2 boilers: Intergas compact HRE CW-5
- Plenty of public parking spaces
- Possibility for two parking permits
An Appointment can be made via our office or through an online agenda on our website.
When you visit we will gladly tell you more about this tastefully renovated home.
Specifications
Address
1081 JG Amsterdam
Price
Details
Layout
Garden
Garage
Bergruimte
Energy rating
Your estate agent
Jan Jaap ten Arve
Interested in this property? We will gladly contact you. Fill in this form for a viewing of this property or for more information. We will contact you as soon as possible.




















