** english text below**
**Bezichtigingen ook online in te plannen op de Website de Makelaars van Amsterdam**
Als je op zoek bent naar een ruim en comfortabel appartement met uitbreiding mogelijkheid in een levendige omgeving, dan is Ferguutstraat 10-3 in Bos en Lommer de ideale plek voor jou en je gezin. Dit appartement heeft alles wat je nodig hebt om te genieten van het leven in de stad, zonder concessies te doen aan comfort en privacy.
LOCATIE:
De Ferguutstraat is een rustige straat in het hart van Bos en Lommer. Deze buurt is de laatste jaren enorm in populariteit gestegen en het is gemakkelijk te begrijpen waarom. Hier vind je alles wat je nodig hebt binnen handbereik. Van gezellige cafés en restaurants tot winkels, parken en culturele evenementen - Bos en Lommer heeft het allemaal. Het appartement ligt bovendien naast het prachtige Erasmuspark, waar je kunt wandelen, joggen, picknicken of gewoon ontspannen in de zon.
WONING:
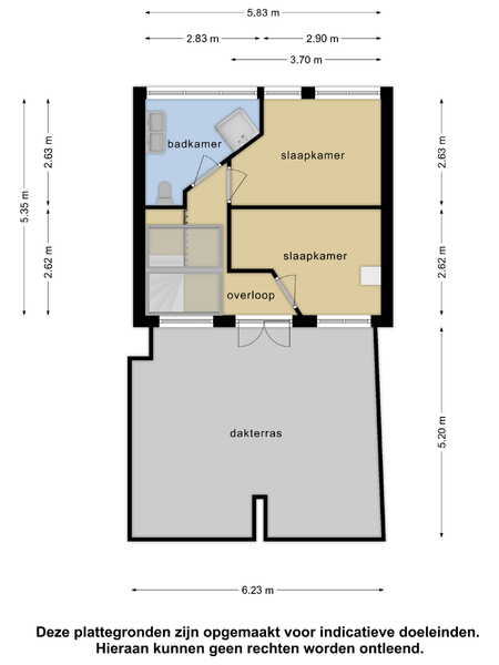
Dit ruime en praktische appartement heeft een oppervlakte van 97 m2 en beschikt over drie comfortabele slaapkamers, waardoor het perfect is voor jonge gezinnen en mensen die op zoek zijn naar extra ruimte. Het appartement is gelegen op de derde en vierde verdieping van een sfeervol jaren '30 pand en is bereikbaar via een gemeenschappelijke trap.
.Het ruime dakterras gelegen op het oosten is een echte bonus. Hier kun je genieten van de zon, een goed boek lezen of gezellig samenzijn met vrienden en familie.
MOGELIJKHEID TOT VERGROTEN WONING:
Een van de grote voordelen van dit appartement is de mogelijkheid om de woning te vergroten naar circa 125m2 met groot dakterras. De vergunning hiervoor is reeds afgegeven, waardoor je zonder veel gedoe kunt beginnen met de verbouwing. Bij de foto’s staat een tekening met de mogelijke nieuwe situatie.
VvE:
Dit appartement is onderdeel van een actieve en hechte VvE van 4 leden, waarvoor maandelijks €237 aan servicekosten worden betaald.
Erfpacht:
Het appartement is gelegen op gemeentelijke erfpachtgrond, waarvoor jaarlijks een bedrag van €770,- verschuldigd is. Het is echter mogelijk om over te stappen naar het eeuwigdurende erfpachtstelsel met gunstige voorwaarden.
Bijzonderheden:
- Bouwjaar 1939
- Gebruiksoppervlakte 97m2
- mogelijkheid tot uitbreiding woning naar circa 125M2 met dakterras, vergunning reeds af gegeven
- Balkon en groot dakterras op het oosten
- 3 slaapkamers
- Kleinschalige en gezonde VvE
- Maandelijkse service kosten €237,- Per maand
- Jaarlijkse erfpacht €770,- Per jaar, afkoop met gunstige voorwaarden mogelijk
If you are looking for a spacious and comfortable apartment with extension possibility in a lively area, Ferguutstraat 10-3 in Bos en Lommer is the ideal place for you and your family. This apartment has everything you need to enjoy city life without compromising on comfort and privacy.
LOCATION:
Ferguutstraat is a quiet street in the heart of Bos en Lommer. This neighbourhood has skyrocketed in popularity in recent years and it is easy to see why. Here you will find everything you need within easy reach. From cosy cafés and restaurants to shops, parks and cultural events - Bos en Lommer has it all. The apartment is also next to the beautiful Erasmus Park, where you can walk, jog, picnic or just relax in the sun.
PROPERTY:
This spacious and practical flat has an area of 97 m2 and features three comfortable bedrooms, making it perfect for young families and those looking for extra space. The apartment is located on the third and fourth floors of an attractive 1930s building and is accessed via a communal staircase.
.The spacious roof terrace facing east is a real bonus. Here you can enjoy the sun, read a good book or socialise with friends and family.
POSSIBILITY TO ENLARGE THE FLAT:
One of the great advantages of this apartment is the possibility to enlarge the house to approximately 125m2 with large roof terrace. The permit for this has already been issued, so you can start renovating without much hassle. A drawing showing the possible new situation is attached to the photos.
HoA:
This apartment is part of an active and close-knit VvE of 4 members, for which monthly service charges of €237 are paid.
Leasehold:
The flat is located on municipal leasehold land, for which an annual amount of €770 is due. However, it is possible to switch to the perpetual ground lease system with favourable conditions.
Details:
- Built in 1939
- Usable area 97m2
- possibility to extend the house to approximately 125m2 with large roof terrace, permit already issued
- Balcony and large roof terrace facing east
- 3 bedrooms
- Small and healthy owners association
- Monthly service costs €237,- Per month
- Annual ground rent €770,- Per year, buy off with favourable conditions possible