Information
Description
Unieke kans: voormalige praktijkruimte met veel potentie, transformeer deze ruimte tot uw droomwoning!
Bent u op zoek naar een uniek project waar u uw creativiteit en passie in kwijt kunt? Deze voormalige praktijkruimte op de eerste verdieping biedt u de kans om uw eigen stempel te drukken en een prachtige woning te creëren. De ruimte is toegankelijk via de galerij op de eerste verdieping, die op haar beurt enkel bereikbaar is via de trappen aan de zijkant.
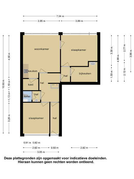
De ruimte bestaat uit drie lichte kamers, waardoor u diverse indelingsmogelijkheden heeft om uw ideale leefruimte te realiseren. Houd er wel rekening mee dat de woning volledig gerenoveerd dient te worden en momenteel voorzien is van enkelglas en blokverwarming. Met een oppervlakte van circa 61 vierkante meter heeft u voldoende ruimte om uw woonwensen te vervullen.
Geniet van het schitterende uitzicht over de Sloterplas en de nabijheid van diverse voorzieningen. Winkelcentrum Osdorpplein ligt op steenworp afstand, waar u terecht kunt bij de Jumbo, Lidl en Albert Heijn XL supermarkten voor al uw dagelijkse boodschappen. Het plein telt veel winkels die echte service bieden, zoals de schoenmaker, de apothekers, doe-het-zelf zaken en opticiens. En het plein heeft een groot aanbod aan verse producten, bijvoorbeeld bij de notenbar, de viswinkel, een toko en verschillende bakkers. Qua bereikbaarheid zit u hier uitstekend, met tramlijnen 17 en 27 die voor de deur stoppen. Zo heeft u een perfecte verbinding met Trein- en Metrostation Lelylaan en Station Amsterdam Centraal.
Bent u een natuurliefhebber? De woning ligt letterlijk aan de prachtige Sloterplas en het Sloterpark, waar u heerlijk kunt wandelen, joggen of picknicken.
Grijp deze kans om van deze voormalige praktijkruimte uw droomwoning te maken op een geweldige locatie!
Vereniging van Eigenaren
Het beheer van de vereniging van eigenaren wordt gedaan door een professionele VVE beheerder. Het is een gezonde en actieve VVE. In het complex is blokverwarming aanwezig. De servicekosten bedragen € 286,38 per maand en dit is inclusief € 105,35 stookkosten.
ENERGIE BESPAREN
De VVE heeft een vooruitstrevende duurzaamheids ambitie. Een bouwteam (bestaande uit een architect, aannemer, begeleider en een aantal eigenaren) is bezig met concrete plannen om zowel de voorzijde als de achterzijde (Sloterplas) compleet te vernieuwen met als resultaat goed geïsoleerde panelen, hoogwaardige kozijnen met HR+++ glas. Ook kijkt het bouwteam naar extra energiebesparende maatregelen, zoals isolatie van de plafonds van de garages (dus ook onder nummer 14), waterzijdig inregelen van de radiatoren en het plaatsen van zonnepanelen. Hiervoor wordt een financiering aangegaan door de VVE. De rente en aflossing van de 20 jarige, binnenkort door de VVE te formaliseren lening, zijn in de huidige servicekosten inbegrepen. De verwachting van het bouwteam is dat de aannemer start eind 2023 / begin 2024. De flat maakt gebruik van blokverwarmig die op dit moment wordt gestookt met gas. De flat kan overstappen op warmtepomp of warmtenet, als de ketels zijn afgeschreven.
BIJZONDERHEDEN:
•Voormalige praktijkruimte bestaande uit 3 kamers;
•Te transformeren naar woning van circa 60 m2;
•Uitzicht over de Sloterplas;
•Energielabel G geldig tot en met 9 november 2032;
•Servicekosten zijn € 286,38 per maand voor reservering en onderhoud;
•Voorschot stookkosten € 105,35 per maand worden betaald via de servicekosten;
•Verwarming door middel van blokverwarming. Warm water door middel van een boiler;
•Erfpacht € 98,01 per jaar tot 2037;
•Gelegen op de eerste verdieping en toegankelijk via de trap aan zijkant en galerij;
•Professioneel VvE beheer door "Pro VVE Beheer";
Asbestclausule:
In de koopovereenkomst zal een clausule worden opgenomen waarin koper verklaart ermee bekend te zijn dat de woning gezien de bouwperiode mogelijk asbesthoudende materialen kan bevatten. Bij eventuele verwijdering van asbesthoudende materialen dienen op grond van milieuwetgeving speciale maatregelen te worden genomen. Koper verklaart met deze wetenschap en de eventuele gevolgen hiervan in te stemmen en vrijwaart verkoper voor alle aansprakelijkheid die uit de aanwezigheid van enig asbest en de verwijdering ervan kan voortvloeien.
Ouderdomsclausule:
Koper verklaart ermee bekend te zijn dat de woning (en eventuele bijgebouwen) gezien de bouwperiode ouder is en dat er sprake kan zijn van een verouderde bouwkwaliteit en achterstallig onderhoud. Koper aanvaardt alle in verband met deze ouderdom en bouwkwaliteit te verwachten (verborgen) gebreken en vrijwaart verkoper voor alle aansprakelijkheid die hieruit voortvloeit.
***ENGLISCH***
Unique opportunity: former practice space with great potential, transform this space into your dream home!
Are you looking for a unique project where you can put your creativity and passion to work? This former practice space on the first floor offers you the chance to make your mark and create a beautiful home. The space is accessible via the gallery on the first floor, which in turn can only be reached via the stairs on the side.
The space consists of three bright rooms, providing you with various layout possibilities to create your ideal living space. Keep in mind that the property needs to be completely renovated and is currently equipped with single glazing and block heating. With an area of approximately 61 square meters, you have ample space to fulfill your living desires.
Enjoy the stunning view over the Sloterplas and the proximity of various amenities. Osdorpplein shopping center is just a stone's throw away, where you can visit Jumbo, Lidl, and Albert Heijn XL supermarkets for all your daily groceries. In terms of accessibility, you are in an excellent location, with tram lines 17 and 27 stopping right outside the door. This provides a perfect connection with Train and Metro Station Lelylaan and Amsterdam Central Station. Are you a nature lover? The property is located near the beautiful Sloterplas and Sloterpark, where you can enjoy walking, jogging, or picnicking. Seize this opportunity to turn this former practice space into your dream home in an amazing location!
Homeowners Association
The management of the homeowners association is done by a professional HOA manager. It is a healthy and active HOA. Block heating is present in the complex. The service costs amount to € 286,38 per month, including € 105,35 heating costs.
ENERGY SAVING
The Homeowners Association (VVE) has a progressive sustainability ambition. A construction team, consisting of an architect, contractor, supervisor, and several owners, is working on concrete plans to completely renew both the front and the back (Sloterplas) of the building. The result will be well-insulated panels and high-quality frames with HR+++ glass.
The construction team is also considering additional energy-saving measures, such as insulating the ceilings of the garages (including under number 14), hydronic balancing of the radiators, and the installation of solar panels. To fund these improvements, the VVE is taking out a loan. The interest and repayment of this 20-year loan, which the VVE is set to formalize soon, are included in the current service costs.
The construction team expects the contractor to start work at the end of 2023 or the beginning of 2024. The apartment building currently uses block heating, which is powered by gas. The building could switch to a heat pump or district heating once the current boilers have been depreciated.
HIGHLIGHTS:
• Former practice space consisting of 3 rooms;
• To be transformed into a home of approximately 60 m2;
• View over the Sloterplas;
• Energy label G valid until November 9, 2032;
• Service costs are € 286,38 per month for reservation and maintenance;
• Advance heating costs of € 105,35 per month are paid through the service costs;
• Heating by means of block heating. Hot water via a boiler;
• Ground lease € 98.01 per year until 2037;
• Located on the first floor and accessible via the side stairs and gallery;
• Professional HOA management by "Pro VvE Beheer."
Asbestos clause:
A clause will be included in the purchase agreement in which the buyer declares to be aware that the property may contain asbestos-containing materials due to the construction period. In the event of the removal of asbestos-containing materials, special measures must be taken under environmental legislation. The buyer agrees with this knowledge and the possible consequences thereof and indemnifies the seller for all liability arising from the presence of any asbestos and its removal.
Age clause:
The buyer declares to be aware that the property (and any outbuildings) is older due to the construction period and that there may be an outdated construction quality and deferred maintenance. The buyer accepts all expected (hidden) defects related to this age and construction quality and indemnifies the seller for all liability arising from it.
Specifications
Address
1068 WL Amsterdam
Price
Details
Layout
Garden
Garage
Bergruimte
Energy rating
Your estate agent
Maurits van Leeuwen
Interested in this property? We will gladly contact you. Fill in this form for a viewing of this property or for more information. We will contact you as soon as possible.













