**English text below**
MODERN WONEN IN DE IDEALE STADSOASE
Op zoek naar de perfecte balans tussen bruisend stadsleven en ontspanning? Dit schitterende appartement aan de Visseringstraat 19E biedt alles wat je nodig hebt! Met energielabel A, gelegen op eigen grond en voorzien van een indrukwekkend dakterras, is dit dé woning voor wie houdt van comfort en de dynamiek van Amsterdam.
Welkom in de Staatsliedenbuurt, een buurt die de charme van het authentieke Amsterdam naadloos combineert met moderne voorzieningen. Dit prachtige appartement, gebouwd in 2005, bevindt zich op eigen grond – een waardevolle en zeldzame eigenschap in Amsterdam. Dankzij de hoge plafonds en het energielabel A geniet je hier van een ruimtelijk en licht gevoel, én van een energiezuinig en toekomstbestendig thuis.
De ligging? Perfect. Op slechts enkele stappen van de Jordaan en Westerpark, ideaal voor een ochtendwandeling in het park, een snelle lunch in de buurt of een gezellige avond in een van de vele cafés.
Het dakterras is een echte eyecatcher. Begin je dag met een kop koffie in de ochtendzon of sluit af met een glas wijn bij zonsondergang – dit is dé plek om de drukte van de stad even achter je te laten, zonder ver weg te hoeven.
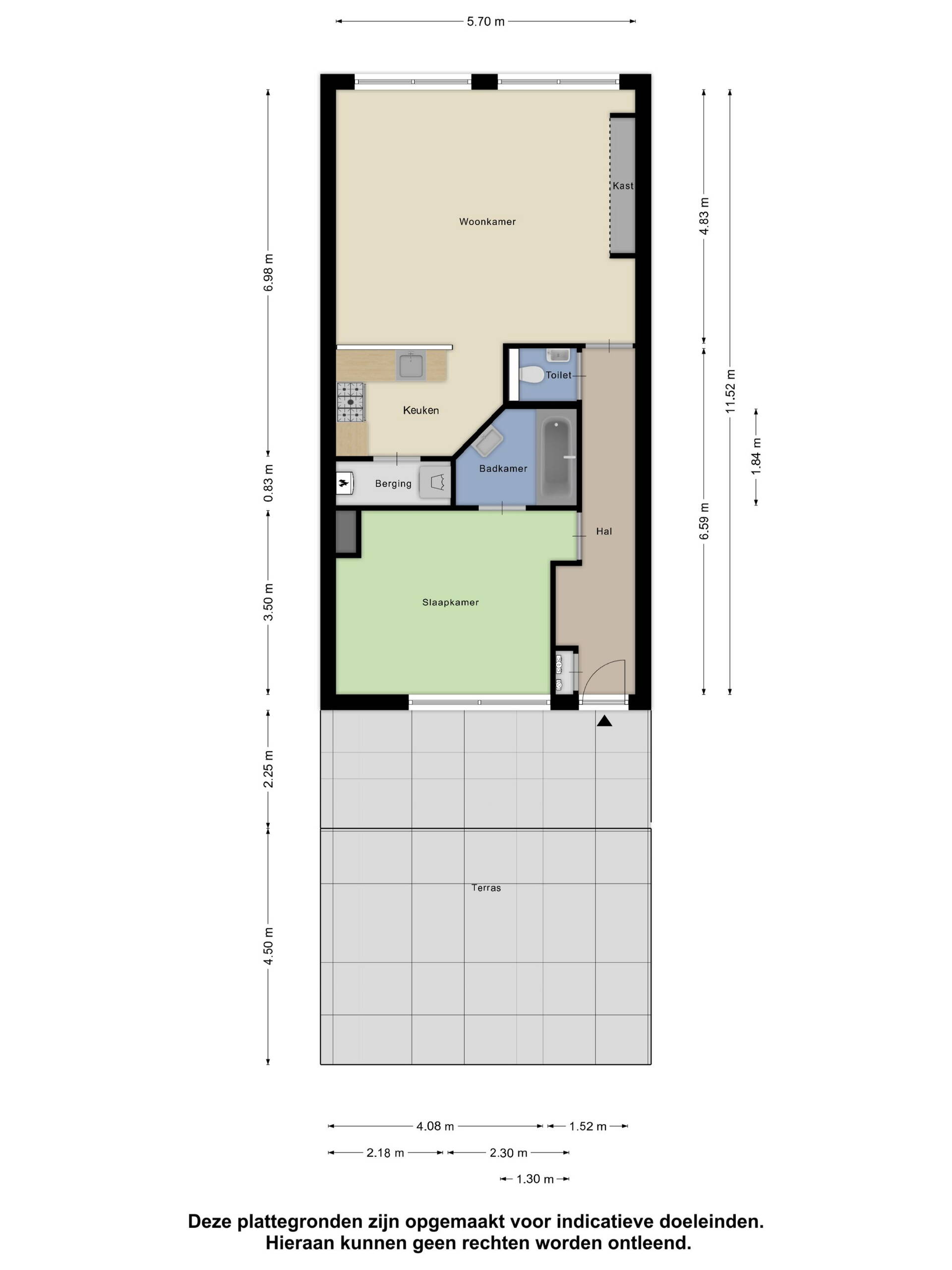
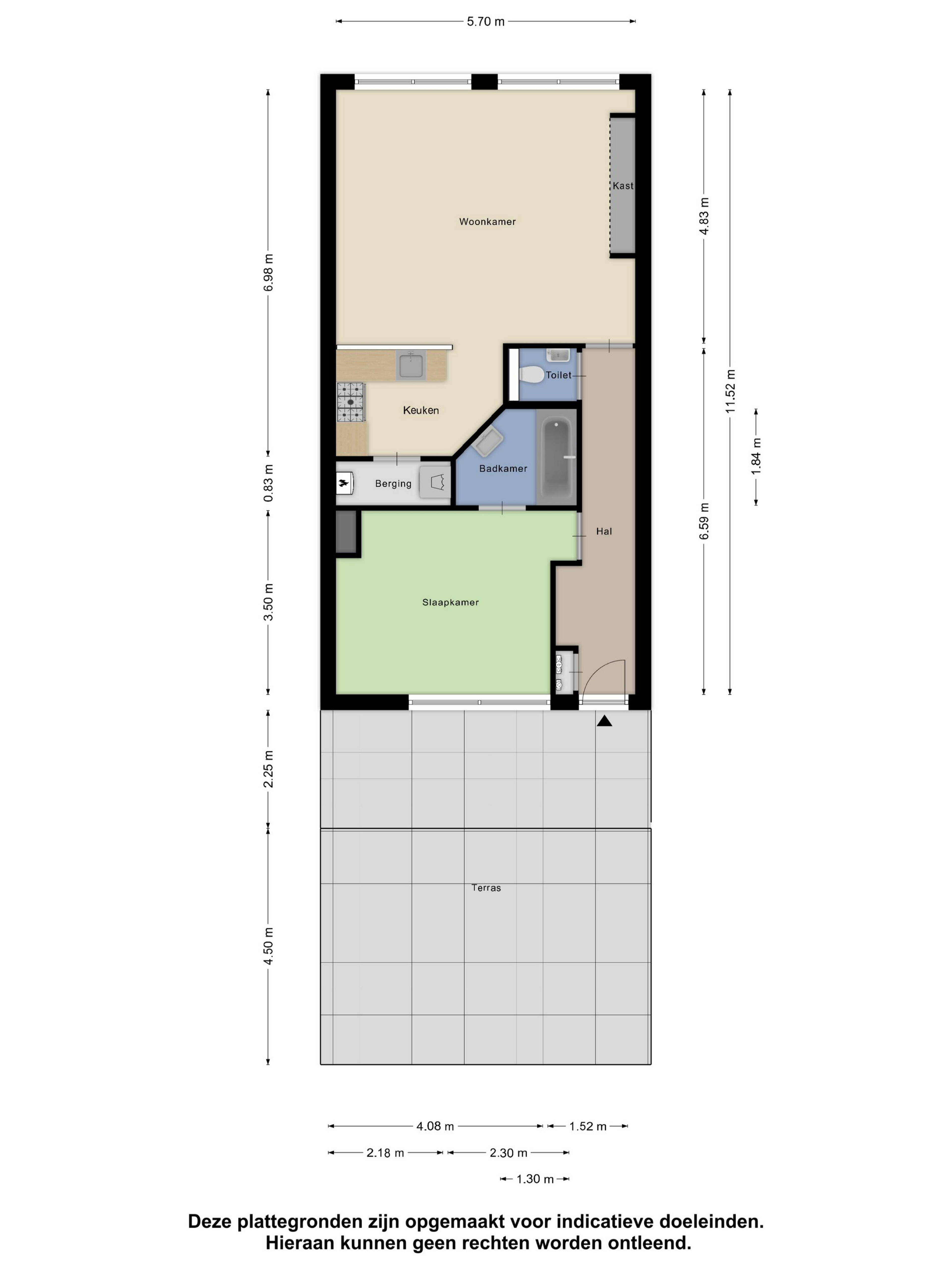
Met een woonoppervlak van 65m² biedt dit appartement de ideale balans tussen ruim en knus. De hoge plafonds zorgen voor een open en lichte sfeer, terwijl de slimme indeling optimaal gebruik maakt van de ruimte. Je beschikt over één ruime slaapkamer met een en-suite badkamer, modern en stijlvol afgewerkt. De lift brengt je rechtstreeks naar je verdieping, zodat je geen gedoe hebt met trappen.
Het appartement maakt deel uit van een actieve en betrokken Vereniging van Eigenaren (VvE), die uitstekend voor het pand zorgt. De prettige sfeer binnen de VvE zorgt ervoor dat je je hier direct thuis zult voelen.
Dit appartement heeft alles wat je zoekt. Of je nu je eerste woning koopt of een nieuwe stap wilt maken, hier vind je alles wat Amsterdam te bieden heeft. De rustige Staatsliedenbuurt voelt aan als een dorp in de grote stad, met de binnenstad om de hoek. Dichtbij vind je de Westerpark en Jordaan, twee iconische plekken die altijd levendigheid brengen.
Bijzonderheden:
-Bouwjaar 2005
-Gelegen op eigen grond
-Energielabel A
-Woonoppervlak 65m²
-Groot dakterras
-Hoge plafonds
-Ruime kamers
-English Version
MODERN LIVING IN THE IDEAL URBAN OASIS
Looking for the perfect balance between vibrant city life and relaxation? This stunning apartment at Visseringstraat 19E offers everything you need! With an energy label A, freehold ownership, and an impressive rooftop terrace, this is the home for those who love comfort and the dynamic energy of Amsterdam.
Welcome to the Staatsliedenbuurt, a neighborhood that effortlessly combines the charm of authentic Amsterdam with modern amenities. This beautiful apartment, built in 2005, is situated on freehold land – a rare and valuable find in Amsterdam. With high ceilings and an energy label A, you’ll enjoy not only a spacious atmosphere but also the benefits of an energy-efficient and future-proof home.
The location? Perfect. Just steps away from the Jordaan and Westerpark, ideal for a morning stroll, a quick lunch nearby, or a night out in one of the cozy cafés.
The rooftop terrace is an absolute highlight. Imagine starting your day with a coffee in the morning sun or ending it with a glass of wine. This is where you can escape the city’s buzz without having to go far.
With 65m² of living space, this apartment strikes the perfect balance between spacious and cozy. High ceilings create an open and bright atmosphere, while the smart layout optimizes space. You have one spacious bedroom with a modern en-suite bathroom. No hassle with stairs; there’s an elevator that takes you directly to your floor.
The apartment is part of an active and close-knit Homeowners' Association (VvE) that takes great care of the building. You’ll immediately feel at home in this friendly and engaged community.
This apartment has everything to love. Whether you're buying your first home or ready for a new step in your housing journey, this place checks all the boxes. The quiet Staatsliedenbuurt feels like a village within the big city, with all the conveniences of downtown around the corner. Nearby, you’ll find the iconic Westerpark and Jordaan, always keeping life lively here.
Key features:
-Built in 2005
-Freehold land
-Energy label A
-65m² living space
-Large rooftop terrace
-High ceilings
-Spacious rooms