Information
Description
English text below
Bezichtigingen direct in te plannen via de website van De Makelaars van Amsterdam
Ruim opgezet en modern 3-kamerappartement in groene, kindvriendelijke buurt
Licht en ruim appartement van circa 83 m² aan de Zeelandstraat 40-2 hoog, met meerdere kamers, een heerlijk zonnig balkon op het zuiden, en royale opbergruimte. Dit appartement is recentelijk voorzien van een vernieuwde keuken, badkamer en toilet met A-merk apparatuur en luxe marmer-look tegels, wat zorgt voor een moderne uitstraling. Dankzij de rustige ligging, omringd door groen en toch nabij de stad, geniet u hier van het beste van twee werelden.
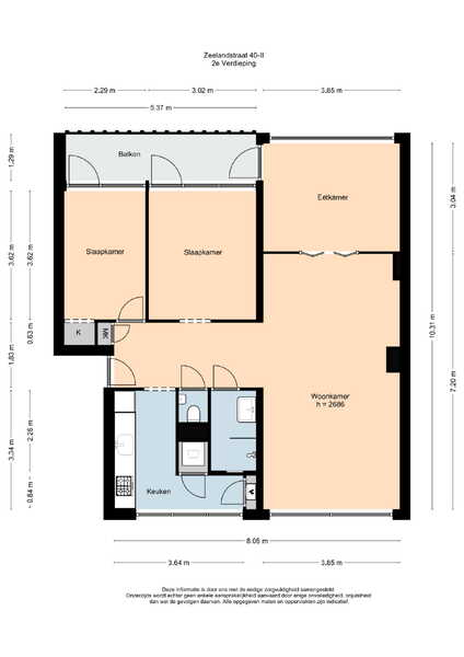
INDELING Het appartement is te bereiken via een breed trappenhuis. Bij binnenkomst treft u een ruime hal die voldoende garderoberuimte heeft en toegang biedt tot alle vertrekken.
De lichte en ruime doorzonwoonkamer loopt door naar een ruime eetkamer met aan beide kanten uitzicht op de groene omgeving en met directe toegang tot het balkon op het zuiden.
De moderne badkamer is voorzien van een luxe inloop-regendouche, inbouwsnis en natuurstenen wastafel met een passende wastafelmeubel en ventilator met timer.
De recent gerenoveerde keuken is uitgerust met A-merk apparatuur, o.a. koelvriescombinatie, inductiekookplaat en combi-oven/magnetron, en biedt voldoende opberg- en werkruimte met zelfs een aparte bergruimte voor de wasmachine en droger.
Er bevinden zich twee ruime slaapkamers met voldoende ruimte voor kleine gezinnen, beiden met directe toegang tot het balkon.
De toiletruimte is modern afgewerkt met een natuurstenen fontein, zwevend toilet, inbouwnis en ventilator met timer.
Op de begane grond is een ruime berging aanwezig en daarnaast beschikt het appartement over een extra grote berging op zolder, die ook als werk- of studeerkamer kan worden ingericht, met mogelijkheid tot verruiming via een dakkapel.
Het balkon op het zuiden biedt uitzicht op een goed onderhouden speelparkje en groene omgeving, ideaal voor ontspanning en voldoende zonlicht.
LIGGING Dit appartement ligt in een rustige, groene buurt en is ideaal voor gezinnen. Zowel het Amstelpark als het Amsterdamse Bos bevinden zich in de directe omgeving, waardoor u kunt genieten van veel natuur en recreatiemogelijkheden. Het Gelderlandplein, op loopafstand, biedt tal van winkels, supermarkten, restaurants en cafés. De bereikbaarheid is uitstekend, met nabijgelegen trein-, tram-, en busstations, evenals metro Noord-Zuidlijn.
OMGEVING De Zeelandstraat is een rustige straat in een groene- en kindvriendelijke wijk in Buitenveldert.
De wijk is gelegen nabij De Zuid-as, WTC, VU en het prachtige en winkelcentrum Gelderlandplein. Buitenveldert kent relatief veel (jonge) gezinnen. (Internationale) basis- en middelbare scholen, kinderopvang en speelgelegenheid is dan ook overal te vinden. Voor recreatie kan de liefhebber zich uitleven in het Amstelpark en/of Amsterdamse Bos wat beide echt om de hoek is. Alle voorzieningen zijn binnen handbereik en met het openbaar vervoer is het centrum van Amsterdam binnen vijftien minuten te bereiken.
De snelweg zoals de A10, A4, A9, A2 ligt op 1,5 km afstand net als verschillende stations voor zowel treinen, metro en de N-Z lijn.
Tevens is het appartement zeer goed te bereiken met eigen auto. Voor de deur is voldoende parkeergelegenheid te vinden en er zijn een paar blauwe zones in de buurt waar gratis geparkeerd kan worden.
De Vereniging van Eigenaren (VvE) is actief en betrokken, wat zorgt voor goed onderhouden gemeenschappelijke ruimtes.
Erfpacht
Het huidige erfpachtvak is afgekocht tot augustus 2051
BIJZONDERHEDEN
•Ruim balkon op het zuiden, met fraai uitzicht;
•Grote berging op de begane grond en extra zolderruimte;
•Recent gerenoveerde keuken en badkamer met marmer-look tegels en A-merk apparatuur;
•Parkeervergunning beschikbaar, altijd voldoende parkeerruimte;
•Energielabel D;
•Actieve en betrokken VvE. Bijdrage: 209,-
•Erfpacht, canon afgekocht tot augustus 2051.
•Oplevering in overleg, kan op korte termijn.
Viewings can be scheduled directly through the website of De Makelaars van Amsterdam.
Spacious and modern 3-room apartment in a green, child-friendly neighborhood
Bright and spacious apartment of approximately 83 m² on Zeelandstraat 40-2, with multiple rooms, a lovely sunny south-facing balcony, and ample storage space. This apartment has recently been updated with a new kitchen, bathroom, and toilet featuring A-brand appliances and luxurious marble-look tiles, providing a modern appearance. Thanks to its peaceful location, surrounded by greenery and still close to the city, you enjoy the best of both worlds here.
LAYOUT
The apartment is accessible via a wide staircase. Upon entering, you are welcomed by a spacious hallway with ample coat storage and access to all rooms.
The bright and roomy through-living room extends into a generous dining area with views of the green surroundings on both sides and direct access to the south-facing balcony.
The modern bathroom features a luxurious walk-in rain shower, built-in niche, natural stone sink with a matching vanity, and a fan with a timer.
The recently renovated kitchen is equipped with top-brand appliances, including a fridge-freezer, induction cooktop, and combination microwave/oven. It offers ample storage and workspace, with a separate area for a washing machine and dryer.
There are two spacious bedrooms, providing ample room for small families, both with direct access to the balcony.
The toilet is modernly finished with a natural stone fountain, wall-mounted toilet, built-in niche, and a fan with a timer.
On the ground floor, there is a large storage room, and the apartment also includes an extra-large attic storage space, which can be used as a work or study room, with the option for expansion via a dormer window.
The south-facing balcony overlooks a well-maintained playground and green surroundings, ideal for relaxation and ample sunlight.
LOCATION
This apartment is situated in a quiet, green neighborhood, ideal for families. Both the Amstelpark and the Amsterdamse Bos are nearby, allowing you to enjoy plenty of nature and recreational opportunities. Gelderlandplein, within walking distance, offers numerous shops, supermarkets, restaurants, and cafés. Accessibility is excellent, with nearby train, tram, and bus stations, as well as the North-South metro line.
SURROUNDINGS
Zeelandstraat is a quiet street in a green and child-friendly neighborhood in Buitenveldert. The area is close to the Zuid-as, WTC, VU, and the beautiful Gelderlandplein shopping center. Buitenveldert has a relatively high number of (young) families. (International) primary and secondary schools, childcare, and playgrounds are widely available. For recreation, enthusiasts can enjoy Amstelpark and/or Amsterdamse Bos, both of which are right around the corner. All amenities are within reach, and with public transport, Amsterdam's city center can be reached within fifteen minutes.
The highways such as the A10, A4, A9, and A2 are 1.5 km away, as well as various stations for both trains, metro, and the North-South line.
The apartment is also very accessible by car, with ample parking space in front of the door and some blue zones nearby where parking is free.
The Homeowners’ Association (VvE) is active and involved, ensuring well-maintained common areas.
Leasehold
The current leasehold term has been bought off until August 2051.
PARTICULARS
•Spacious south-facing balcony with a beautiful view;
•Large storage room on the ground floor and extra attic space;
•Recently renovated kitchen and bathroom with marble-look tiles and A-brand appliances;
•Parking permit available, with ample parking space always available;
•Energy label D;
•Active and involved VvE. Contribution: €209;
•Leasehold, ground rent bought off until August 2051.
•Delivery in consultation, possible on short notice.
Specifications
Address
1082 BX Amsterdam
Price
Details
Layout
Garden
Garage
Balkon
Bergruimte
Energy rating
Your estate agent
Pelle Freijsen
Interested in this property? We will gladly contact you. Fill in this form for a viewing of this property or for more information. We will contact you as soon as possible.













