Information
Description
Dit stijlvolle en goed onderhouden 3-kamerappartement met gunstige erfpachtvoorwaarden is gelegen op een toplocatie in Amsterdam en biedt niet alleen plek om te wonen maar ook om te leven! Op deze plek, recht tegenover het Westerpark, waar rust en reuring hand in hand gaan. Met het Westerpark letterlijk aan de overkant van de straat, woon je in het groen én in de stad. Dit park is een van de hotspots van Amsterdam, met tal van festiviteiten, markten en sportfaciliteiten. De woning telt 2 slaapkamers, een werkkamer, badkamer met ligbad, riante keuken, balkon en nog veel meer. Kortom, 75m2 puur woongenot.
Boek een afspraak via de online kalender of neem telefonisch contact met ons op. Tot snel.
*scroll down below for english*
Indeling
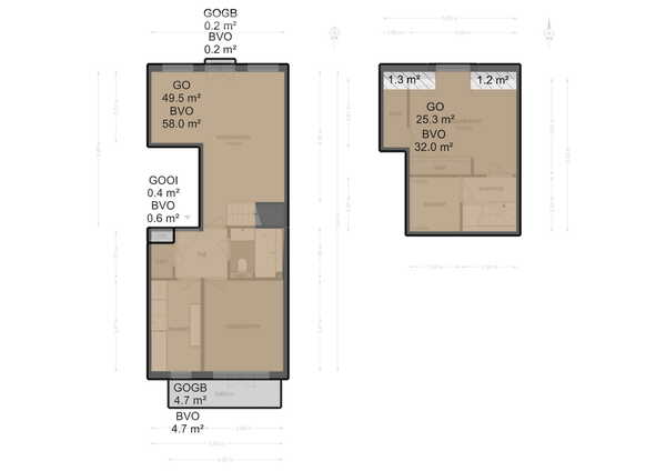
Het appartement bevindt zich op de derde en deels vierde verdieping van het gebouw. Via de gemeenschappelijke trap kom je bij de voordeur van het appartement. Eenmaal binnen bevindt zich in de hal de toegang tot de badkamer, keuken, werkkast (wasmachine&droger), slaapkamer en woonkamer. De stijlvolle woonkamer is gelegen aan de voorzijde en is voorzien van 2 openslaande deuren met frans balkon en aan weerszijden grote ramen. Dit zorgt voor veel natuurlijke lichtinval en een fantastisch uitzicht op de Westergasfabriek. Over de gehele 3e etage loopt een prachtige massieve eikenhouten vloer en zijn de muren strak gestuct. Vanuit de woonkamer loopt een interne trap (met opslagruimte) naar de vierde etage. Aan de achterzijde van de woning vindt u een ruime slaapkamer met toegang tot het balkon. Eveneens aan de achterzijde en bovendien ook met toegang tot het balkon is de riante keuken. Deze is o.a. voorzien van een 6 pits SMEG fornuis en diverse inbouwapparatuur. De keurige badkamer is van grond tot aan plafond betegeld en voorzien van een wastafelmeubel, toilet en een ligbad. Het balkon aan de achterzijde van het gebouw is gelegen op het zuiden. Hier heb je genoeg privacy om te kunnen genieten van de zon en even ontsnappen aan de stadse drukte.
De vierde etage bereikt u, zoals eerder beschreven, vanuit de woonkamer middels vaste interne trap. Hier is een tweede ruime slaapkamer met kleine dakkapel en grote inloopkast. Verder nog een kamer die bijv. is te gebruiken als thuiskantoor. Vanuit hier zou een trap kunnen worden gemaakt naar het dak. De woning heeft geen dakterras. U dient als koper zelf navraag bij de gemeente/overheid te doen voor de mogelijkheden omtrent o.a. vergunning.
OMGEVING
Het appartement ligt pal tegenover het terrein van de Westergasfabriek dat een unieke combinatie van natuur en cultuur is. Zo is er een picknickveld, kinderboerderij, diverse terrassen, restaurants en een bioscoop. Het prachtig aangelegde Westerpark is een waar paradijs en biedt volop mogelijkheden voor sport, ontspanning en recreatie. Op loopafstand liggen diverse supermarkten, drogisterijen en bakkerijen voor de dagelijkse boodschappen. Daarnaast zijn er in de directe omgeving veel gezellige koffietentjes, café’s en populaire restaurants. In het verlengde van de Haarlemmerweg is de Haarlemmerstraat. Deze straat is uitgeroepen tot de leukste winkelstraat van Nederland. Je vindt hier allerlei winkels, van kleine boetiekjes, gespecialiseerde winkels tot trendy restaurants en bars. De wijk grenst aan de Jordaan met al zijn leuke winkeltjes, gezellige cafés en bijzondere restaurantjes.
**Voor meer informatie betreffende deze woning kunt u terecht op onze exclusieve woningwebsite: haarlemmerweg155-3.nl**
Bijzonderheden
• Woonoppervlak van circa 75 m²;
• 2 ruime slaapkamers;
• Gelegen op erfpacht grond, erfpacht vooruitbetaald t/m 31 augustus 2055
• Overstap naar eeuwigdurend erfpacht is reeds voltrokken met vastzetten toekomstige canon.
• Uitzicht over de Westergasfabriek en het Westerpark;
• Woning breed balkon op zuiden van circa 5 m²;
• Kleine VvE met vier eigenaren;
• Servicekosten ca. € 140,- per maand
• Enkele minuten fietsen naar het centrum;
• Energielabel A
This stylish and well-kept 3-room apartment with favorable leasehold conditions is located in a prime spot in Amsterdam and offers not just a place to live, but a place to truly enjoy life. Situated right across from Westerpark, this is where tranquility and vibrancy go hand in hand. With the park quite literally on your doorstep, you get the best of both worlds — green surroundings and urban convenience. Westerpark is one of Amsterdam’s top hotspots, home to festivals, markets, and sports facilities.
The apartment features 2 bedrooms, a home office, bathroom with bathtub, spacious kitchen, sunny balcony, and more — in short, 75 m² of pure living enjoyment.
Book a viewing via the online calendar or contact us by phone. See you soon!
Layout
The apartment is located on the third and partially fourth floors of the building. A shared staircase leads to the front door. Once inside, the hallway provides access to the bathroom, kitchen, utility closet (with washer & dryer), a bedroom, and the living room.
The stylish living room is at the front of the apartment and features two French doors opening to a Juliet balcony, along with large windows on either side — allowing in plenty of natural light and offering fantastic views of the Westergasfabriek. The entire third floor has a beautiful solid oak floor, and the walls are smoothly finished.
From the living room, an internal staircase (with built-in storage) leads to the fourth floor.
At the rear of the apartment, you’ll find a spacious bedroom with access to the balcony. The large kitchen is also at the back and has direct access to the balcony. It includes a 6-burner SMEG stove and various built-in appliances.
The neat and fully tiled bathroom includes a vanity unit, toilet, and bathtub. The balcony at the rear of the building is south-facing, offering plenty of privacy and a perfect spot to enjoy the sun and escape the city buzz.
As mentioned earlier, the fourth floor is accessible via a fixed internal staircase from the living room. Here you’ll find a second spacious bedroom with a small dormer window and a large walk-in closet, plus an additional room ideal as a home office. From this room, a staircase could potentially be added to access the roof. The property does not currently have a roof terrace — buyers are advised to contact the municipality to inquire about permits and possibilities.
Surroundings
The apartment is located directly opposite the Westergasfabriek grounds — a unique blend of nature and culture. The area offers a picnic field, petting zoo, several cafés, restaurants, terraces, and a cinema. The beautifully landscaped Westerpark is a green paradise with endless options for sports, relaxation, and recreation.
Within walking distance, you'll find supermarkets, drugstores, bakeries, and everything you need for daily life. The neighborhood also features many cozy cafés, coffee spots, and popular restaurants. Just down the road is the Haarlemmerstraat, named the “Best Shopping Street in the Netherlands,” filled with boutiques, specialty shops, trendy restaurants, and bars. The apartment is also close to the Jordaan district, known for its charming shops, lively cafés, and unique eateries.
For more information about this property, visit our exclusive listing website: haarlemmerweg155-3.nl
Key Features
•Approx. 75 m² of living space
•2 spacious bedrooms
•Leasehold paid in advance until August 31, 2055
•Switch to perpetual leasehold already completed with fixed future ground rent
•Views over the Westergasfabriek and Westerpark
•South-facing full-width balcony of approx. 5 m²
•Small homeowners’ association with four members
•Monthly service costs approx. €140
•Just minutes by bike to the city center
•Energy label A
Specifications
Address
1051 KZ Amsterdam
Price
Details
Layout
Garden
Garage
Balkon
Bergruimte
Energy rating
Your estate agent
Jan Jaap ten Arve
Interested in this property? We will gladly contact you. Fill in this form for a viewing of this property or for more information. We will contact you as soon as possible.













