Information
Price
€ 3.000 per maand
Construction type
bestaande bouw
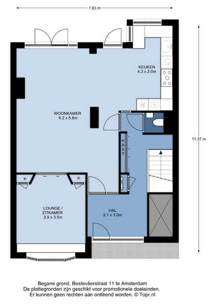
Living area
150 m2
Floor
1
Rooms
4
Bedrooms
3
Description
Specifications
Address
Bestevaerstraat 11-H
1056 HD Amsterdam
1056 HD Amsterdam
Price
Type
Gestoffeerd
Price
€ 3.000 per maand
Acceptance
direct
Details
Type object
dubbel benedenhuis
Object type
appartement
Construction type
bestaande bouw
Construction year
1921
Living area
150 m2
Other indoor spaces
0 m2
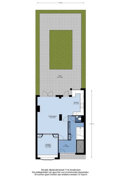
Building-related outdoor space
60 m2
External storage space
0 m2
Content
400 m3
Open porch
nee
Floor
1
Number of floors
2
Location
Aan rustige weg, In centrum, In woonwijk
Type of heating
C.V.-ketel
Hot water installation
C.V.-ketel
Type of insulation
Dubbel glas
Roof
Plat dak
Roof materials
Bitumineuze dakbedekking
Layout
Rooms
4
Bedrooms
3
Garden
Aanwezig?
ja
Tuin
Achtertuin
Oppervlakte
80 m2
Diepte
10,00 m
Width
8,00 m
Location
West
Bereikbaar via achterom?
nee
Garage
Aanwezig?
nee
Bergruimte
Energy rating
Present?
nee
Your estate agent
Jan Jaap ten Arve
Interested in this property? We will gladly contact you. Fill in this form for a viewing of this property or for more information. We will contact you as soon as possible.



