Information
Description
*English translation below
NIET GESCHIKT VOOR DELERS
In het schitterende Amsterdam Oud-Zuid, op wandelafstand van Sarphatipark en de Amstel, vindt u deze ruimtelijke bovenwoning, gesitueerd op de tweede en derde verdieping. De woning kent een lichte en ruime woonkamer aan de voorzijde, een eetkamer aan de balkonzijde en op de verdieping twee fijne slaapkamers. Beiden zijn gelegen aan de rustige achterzijde, zodat u ’s nachts geen hinder heeft van passanten op straat. De woning verkeert in nette staat en is voorzien van o.a. een mooie laminaatvloer, hoge plinten, goed afgewerkte wanden, dubbele beglazing, ventilatieroosters en een moderne keuken. Op de slaapetage bevindt zich een royale inloopkast evenals twee inbouwkasten, zodat u beschikking heeft tot een grote hoeveelheid bergruimte. Aan de westzijde bevindt zich een heerlijk balkon, zodat u ’s zomers tot laat in de avond van de zon kunt genieten.
De Cornelis Springerstraat is gelegen in het geliefde Burgermeester Tellegenbuurt, deel uitmakend van stadsdeel Oud-Zuid. In de directe omgeving staat het bol van winkels, speciaalzaken, gezellige koffietentjes en restaurants, en ook de onuitputtelijke Albert Cuypmarkt is dichtbij. Amstel en het Sarphatipark liggen om de hoek, en zowel het Museumplein als de levendige grachten zijn lopend of per fiets snel bereikbaar. Openbaar vervoer is ruim voor handen, en via de ring A10 heeft u toegang tot uitvalswegen in alle richtingen.
Indeling van de woning
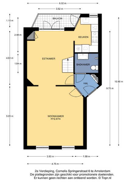
2e verdieping:
Via de hal met meterkast, garderobe en badkamer heeft u toegang tot woon- en eetkamer. De woonkamer is gesitueerd aan de voorzijde en kijkt uit op een rustige straat. Een mooie laminaatvloer en strak afgewerkte wanden zorgen voor een rustige uitstraling, en door licht en grote raampartijen aan voor- en achterzijde ervaart u veel ruimte. De raampartijen zijn uitgerust met ventilatieroosters voor een frisse woonomgeving. Via een open doorgang heeft u toegang tot de ruime eetkamer, eveneens uitgerust met en nette laminaatvloer en tevens voorzien van een inbouwkast, dubbele openslaande deuren naar het balkon en de trapopgang naar de slaapverdieping. Via de eetkamer bereikt u tevens de halfopen keuken. Deze is ingericht met een U-vormig keukenmeubel, uitgevoerd met witte, greeploze fronten en een donker stenen werkblad. Inbouwapparatuur betreft een vijfpits gaskookplaat met wokbrander, een afzuigkap, vaatwasser, koelkast en wasmachine. Een openslaande deur geeft toegang tot het balkon. De badkamer wordt bereikt via de hal en is ingericht met toilet, douche en badkamermeubel met lades, wastafel en spiegelkast.
3e verdieping:
Hier treft u een fijne slaapkamer met een studeer / babykamer. Beiden kamers zijn verbonden via een ruime inloopkast. De kamers zijn gesitueerd aan de achterzijde voor heerlijk rustige nachten, en kijken uit op een groene omgeving. Beide vertrekken zijn afgewerkt met raampartijen, een nette laminaatvloer, hoge plinten, paneeldeuren, strak geschilderde wanden en een radiator.
Buiten:
Het balkon op het westen is prettig ruim en kijkt uit op een gezellige binnenplaats. Houten vloeren zorgen voor een fijne ondergrond en door de ligging geniet je hier tot laat op de avond van de zon.
De bijzonderheden van deze woning
-Bovenwoning met een slaapkamer met een studeer- / babykamer
-Keurig onderhouden
-Moderne keuken
-Veel sfeer
-Goede ventilatie
-Balkon op het westen
-Geliefde locatie
-Woonoppervlakte: 81.90 m2
-Gebouwgebonden buitenruimte: 4.20 m2
-Inhoud woning: 255.21 m3
-Bouwjaar: 1923
- De huur is exclusief g/w/l
- Servicekosten zijn €15,00 euro per maand
- Ingangsdatum 01 december 2021 of anders in overleg.
- Waarborg 2 maanden huur
-Woning is erg stil, geen directe bovenburen (vanwege berging en afstand tussen 3rde en vierde woonlaag)
*English translation
NOT AVAILABLE FOR SHARERS
Cornelis Springerstraat 6, Amsterdam
In the beautiful Amsterdam Oud-Zuid, within walking distance of Sarphatipark and the Amstel, you will find this spacious upstairs apartment, situated on the second and third floor. The house has a bright and spacious living room at the front, a dining room at the balcony side and two nice bedrooms on the first floor. Both are located at the quiet rear, so that you will not be disturbed by passers-by on the street at night. The house is in good condition and is equipped with, among other things, a beautiful laminate floor, high skirting boards, well-finished walls, double glazing, ventilation grilles and a modern kitchen. On the sleeping floor there is a spacious walk-in closet as well as two built-in closets, so that you have access to a large amount of storage space. There is a lovely balcony on the west side, so that you can enjoy the sun until late in the evening in the summer.
The Cornelis Springerstraat is located in the popular Burgermeester Tellegenbuurt, part of the Oud-Zuid district. The immediate vicinity is full of shops, specialty shops, cozy coffee shops and restaurants, and the inexhaustible Albert Cuyp market is also nearby. Amstel and the Sarphatipark are just around the corner, and both the Museumplein and the lively canals are quickly accessible on foot or by bike. Public transport is readily available, and via the A10 ring road you have access to roads in all directions.
Layout of the house
2nd floor:
Through the hall with meter cupboard, wardrobe and bathroom you have access to the living and dining room. The living room is located at the front and overlooks a quiet street. A beautiful laminate floor and sleekly finished walls provide a calm appearance, and the light and large windows at the front and rear give you a lot of space. The windows are equipped with ventilation grilles for a fresh living environment. Through an open passage you have access to the spacious dining room, also equipped with a neat laminate floor and also equipped with a built-in wardrobe, double doors to the balcony and the stairs to the bedroom floor. Through the dining room you also reach the semi-open kitchen. This is furnished with a U-shaped kitchen furniture, equipped with white, handle-less fronts and a dark stone worktop. Built-in appliances include a five-burner gas hob with wok burner, an extractor hood, dishwasher, refrigerator and washing machine. A sliding door gives access to the balcony. The bathroom is reached through the hall and is equipped with toilet, shower and bathroom furniture with drawers, sink and mirror cabinet.
3th floor:
Here you will find a nice bedroom and a Study room / Babyroom. Both rooms are connected via a spacious walk-in closet. The rooms are situated at the rear for wonderfully quiet nights, and overlook a green environment. Both rooms are finished with windows, a neat laminate floor, high skirting boards, panel doors, tightly painted walls and a radiator.
Outside:
The west-facing balcony is pleasantly spacious and overlooks a cozy courtyard. Wooden floors provide a nice surface and because of its location you can enjoy the sun until late in the evening.
The details of this house
- Upstairs apartment with a bedroom with a study- / Babyroom
- Well maintained
- Modern kitchen
- Lots of atmosphere
- Good ventilation
- West-facing balcony
- Favorite location
- Living area: 81.90 m2
- Building-related outdoor space: 4.20 m2
- Content house: 255.21 m3
- Year of construction: 1923
- The rent is excluding g/w/l
- Service costs are €15.00 per month
- Commencement date 01 December 2021 or otherwise in consultation.
- Deposit 2 months rent
- House is very quiet, no direct neighbors above (due to storage and distance between 3rd and 4th floor)
Specifications
Address
1073 LH Amsterdam
Price
Details
Layout
Garden
Garage
Balkon
Bergruimte
Energy rating
Your estate agent
Sabine Wendel
Interested in this property? We will gladly contact you. Fill in this form for a viewing of this property or for more information. We will contact you as soon as possible.












